Location: Madurai
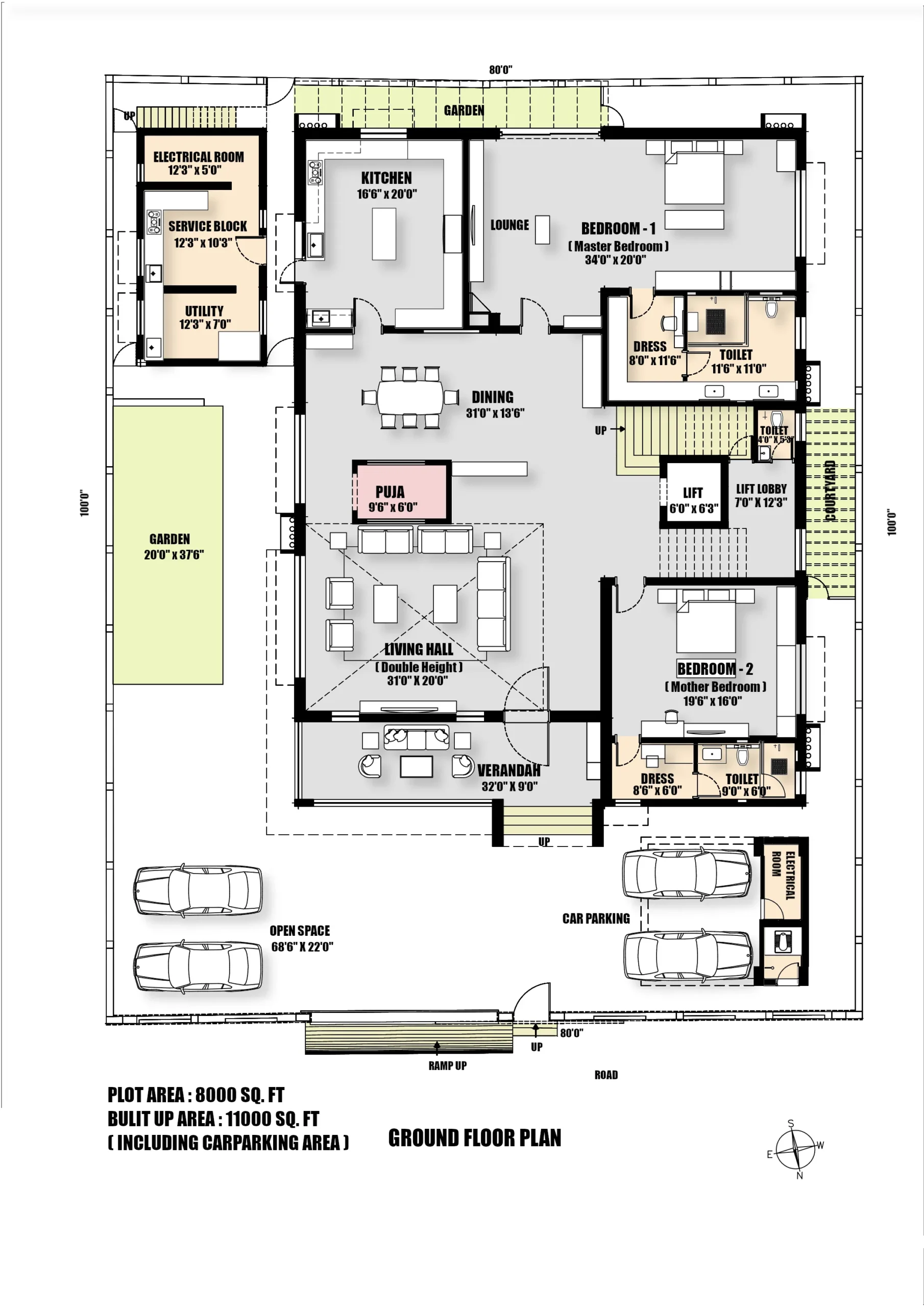
Land Area: 8,000 Sq. Ft
Built Up Area: 11,000 Sq. Ft
Architectural Design: Ansari Architects
Interior Design: Ansari Architects
Exterior
Madurai Palace – The residence is crafted entirely in marble, with seamless walls, flooring, and countertops that exude luxury and sophistication. Expansive glass openings, minimalist detailing, and strategically placed lighting enhance the sense of openness and elegance, creating a timeless, visually striking façade. The interplay of natural materials and clean lines reinforces a contemporary yet classic architectural identity.
GardenThe garden is organized as a linear courtyard featuring geometric pathways and raised planters that introduce greenery and structure The open rear lawn provides a sense of depth and spatial continuity offering a serene outdoor environment that connects the home with nature...
Exterior
Madurai Palace – The residence is crafted entirely in marble, with seamless walls, flooring, and countertops that exude luxury and sophistication. Expansive glass openings, minimalist detailing, and strategically placed lighting enhance the sense of openness and elegance, creating a timeless, visually striking façade. The interplay of natural materials and clean lines reinforces a contemporary yet classic architectural identity.
Garden
The garden is organized as a linear courtyard, featuring geometric pathways and raised planters that introduce greenery and structure. The open rear lawn provides a sense of depth and spatial continuity, offering a serene outdoor environment that connects the home with nature while maintaining visual harmony with the architecture.
Living Area
The living space features a dramatic double-height ceiling with a mezzanine balcony, creating a strong sense of vertical openness and visual connectivity between the upper and lower levels. Layered geometric ceiling panels with recessed lighting add depth and highlight architectural forms, enhancing the contemporary elegance of the space. White marble flooring reflects natural light, while a black-veined feature wall serves as a striking focal point. Large windows draped in sheer fabrics softly diffuse sunlight, maintaining privacy while creating a bright and airy ambiance. Warm wooden accents throughout balance the cool marble tones, contributing to a luxurious, inviting, and harmonious environment.
Puja Room
A thoughtfully positioned puja room enhances the living area with a serene and sacred atmosphere. The space features warm, refined finishes that complement the main living area, creating a harmonious integration of function, spirituality, and design.
Dining Area
The dining area is centrally located between the living room and staircase, forming a natural transitional space. The open layout ensures visual flow and connectivity, while the combination of marble flooring, travertine walls, and luxurious furniture with gold accents elevates the dining experience, balancing elegance with functionality.
Corridor
The corridor serves as a connecting artery throughout the home, guiding movement between private and public areas. Polished marble flooring, accentuated elevator cladding, and carefully chosen wall treatments create a visually striking passage that is both luxurious and welcoming, enhancing the spatial narrative of the residence.
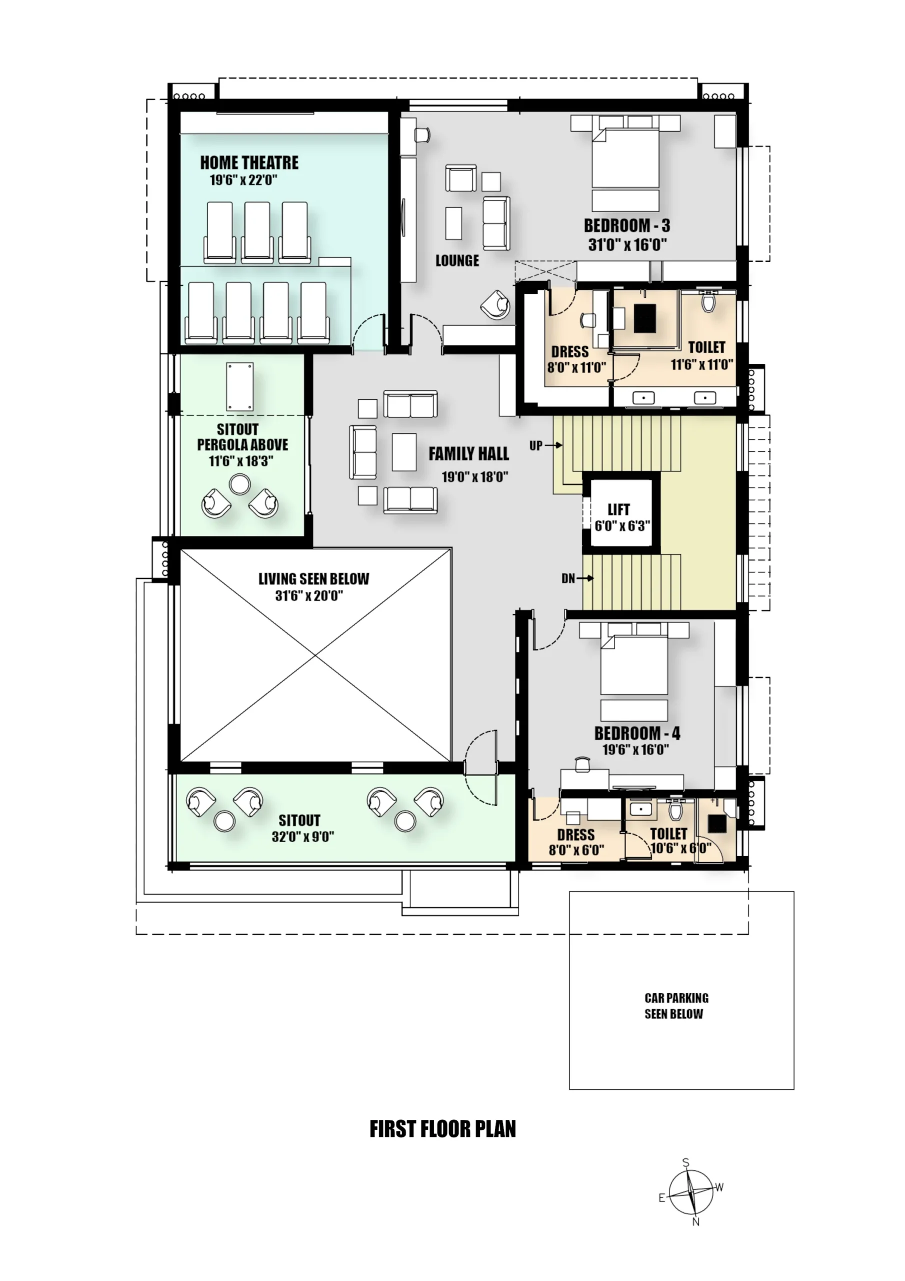
First-Floor Family Hall
The first-floor family lounge overlooks the living area below, creating openness and visual connectivity across levels. Minimalist seating, warm wooden finishes, and a refined neutral palette establish a calming, inviting atmosphere. The space is thoughtfully laid out to ensure flexibility, easy movement, and encourage social interaction within the family zone. Complementing the lounge, the walls feature a harmonious balance of light beige paint and grey marble cladding, blending warmth with cool elegance. Dark wooden accents, polished door frames, and gold-accented shelving add depth, texture, and a touch of sophistication, enhancing the architectural richness of the interiors.
Sit-Out Balcony
A long sit-out balcony runs along the façade, seamlessly connecting indoor and outdoor environments. Dark stone flooring and travertine walls provide a durable, grounded base, while minimal furniture emphasizes openness, encouraging relaxation and offering unobstructed views of the surrounding landscape.
Home Theatre
The home theatre is a dedicated entertainment space optimized for both visual and acoustic experiences. Tiered seating, a centrally framed projection screen, and immersive design elements such as acoustic wall panels and dark wooden flooring create a refined, focused environment for cinematic enjoyment.
Sit-Out & Transitional Spaces
The pergola-covered sit-out area offers a semi-open transitional zone, combining functionality with architectural elegance. Clean tiled flooring, light-colored walls, and subtle details such as a wall-mounted washbasin, soft lighting, and a decorative potted plant create a calm, inviting environment. The space seamlessly connects indoor and outdoor areas, with the pergola filtering sunlight and glass flooring enhancing transparency, producing a dynamic interplay of light and shadow. Essential home systems, including HVAC, water filtration, and electrical components, are discreetly integrated, with a folding glass door providing easy access for maintenance while maintaining visual harmony.
Bedroom Suite
The bedroom is an open-plan suite combining sleeping, lounging, and entertainment zones for a balanced and inviting layout. White marble floors, a striking black-veined TV wall, lavender wardrobe panels, and warm wooden accents create a serene and luxurious atmosphere. Coordinated wardrobe finishes, matching upholstery, and curtains establish a cohesive, sophisticated color palette, while contrasting details like a black marble coffee table with gold accents add depth, warmth, and refined elegance.
Secondary Bedroom
The secondary bedroom features a calming teal accent palette across furniture and cabinetry, paired with polished marble flooring, a black-and-white marble TV wall, and warm wooden elements. Recessed linear and cove lighting in the false ceiling highlights the room’s architectural geometry, enhancing spatial perception and creating a luxurious, balanced, and serene interior that harmonizes color, texture, and functionality.
Playroom (Second Floor)
The second-floor playroom is designed as an open, bright recreational area. Polished marble flooring and large windows fill the room with natural light. Built-in shelving keeps the central floor area clear, providing safe and flexible space for play and creativity.
Gym
The gym features recessed lighting, floating cabinetry, mirror walls, and warm wooden flooring. Full-height glass façades enhance openness, while carefully arranged layouts create a motivating environment suitable for fitness, training, and personal lifestyle activities.
Study Area
The study accommodates dual workstations in a symmetrical layout with an open central floor. White marble flooring, dark wood furniture, and recessed-lit ceilings create a bright, focused, and elegant workspace with unobstructed natural light.
Spa
The spa area centers around a built-in jacuzzi with a frosted glass partition for privacy. Integrated wall niches provide practical storage and display, blending functionality with an elegant, calming design.
Terrace
The terrace serves as a versatile open space, providing unobstructed views and seamless indoor-outdoor integration. Textured walls, dark stone flooring, and wooden ceiling panels create a durable and practical environment, supporting flexible use for leisure and gatherings.
Third-Floor Corridor, Utility, and Terrace
The third floor seamlessly integrates circulation, service, and outdoor spaces. A linear corridor connects private and semi-public areas, featuring polished marble flooring, refined elevator cladding, and minimalistic walls, ensuring smooth flow and a modern, luxurious aesthetic. Adjacent, the utility area is organized for washing, drying, and folding, with stone flooring, neutral walls, and polished wood accents providing functional efficiency and subtle elegance. Extending from the corridor, the open terrace platform offers unobstructed views and flexible use. Its rectilinear layout, complemented by a sculptural spiral staircase, enhances circulation while creating a dynamic and visually engaging architectural composition.
The residence is crafted entirely in marble, with sleek walls, flooring, and countertops creating a seamless, luxurious aesthetic.
Large glass openings, minimalistic detailing, and strategic lighting enhance openness, elegance, and a timeless, sophisticated ambience.
The garden forms a linear courtyard with geometric pathways and raised planters, while an open rear lawn adds depth and a sense of spaciousness.
The living area (31'0" x 20'0") features a double-height ceiling and mezzanine balcony, creating openness and visual connection between levels. White marble flooring, a black-veined feature wall, and warm wooden accents combine luxury, elegance, and a balanced modern aesthetic.
The large windows with sheer drapery allow abundant natural light, softening the space and adding vertical emphasis. A right-side puja room (9'6" x 6'0") complements the space with a serene, sacred ambiance.
The double-height ceiling enhances vertical volume, while layered geometric panels with recessed lighting add depth and visual rhythm.
Dining area (31'0" x 13'6") sits between the living room and staircase, with an open layout for smooth flow and visual connection. White marble floors, beige travertine walls, and a marble table with gold accents create a luxurious, elegant space.
The corridor links the main areas of the house, with a linear layout that emphasizes depth. Black and grey marble floors and walls, white ceilings, and wooden accents create a luxurious and visually striking passage.
The first-floor 19'0" x 18'0" family hall overlooks the double-height living area below, creating openness and visual connectivity. White marble flooring, soft off-white walls, warm wooden accents, and a minimalist seating arrangement combine luxury, calmness, and sophisticated elegance.
A walls combine light beige paint with grey marble cladding, balancing warmth and coolness. Wooden door frames, dark veneer finishes, and a golden shelving unit add depth, texture, and a touch of elegance.
32'0" x 9'0" sit-out balcony extends along the façade, offering a seamless indoor-outdoor connection. Dark grey stone flooring, beige travertine walls, and minimal furniture create a functional, elegant, and open lounging space.
The 19'6" x 22'0" home theatre is designed as a dedicated entertainment space, optimized for immersive sound and visual experience. Tiered seating, a centrally framed projection screen, and a compact, well-proportioned layout ensure comfort, clear sightlines, and an intimate cinematic atmosphere.
Acoustic fabric wall panels, dark wooden flooring, and black leather recliners create a refined, immersive viewing environment. Integrated lighting, concealed speakers, and tiered seating ensure optimal sound quality, comfort, and visual focus.
The sit-out area ( 11'6" x 18'3" ) under the pergola features grey tiled flooring, white walls, and a wooden door with a glass panel, creating a clean and minimalist setting. A wall-mounted washbasin, geometric grid window, soft wall lighting, and a potted plant add function, light, and subtle warmth to the space.
Houses essential systems like HVAC, water filtration, and electrical equipment. A folding glass door ensures easy access for maintenance while keeping the space discreet and organized.
A semi-open transitional space connects indoor and outdoor environments. A pergola roof filters sunlight, while glass flooring enhances openness and visual depth, creating a dynamic play of light and shadow.
The 31'0" x 16'0" bedroom suite combines sleeping, lounging, and entertainment zones in an open layout. White marble floors, black-veined TV wall, lavender wardrobe panels, and wooden accents create a luxurious, balanced, and serene environment.
Lavender glass and beige lacquered wardrobe panels, paired with matching sofa and curtains, create a cohesive, elegant palette. Light beige walls and a black marble coffee table with gold accents add contrast, warmth, and refined sophistication.
The 19'6" x 16'0" bedroom is a spacious, open-plan suite with sleeping, lounging, and entertainment zones. Teal accents on the bed, chair, and wardrobe, combined with beige marble flooring, a black-and-white marble TV wall, and wooden details, create a luxurious, balanced, and sophisticated space.
The false ceiling features recessed linear and cove lighting, casting a soft, ambient glow that highlights the room’s geometry. This subtle illumination enhances spatial depth and adds a modern, elegant touch to the interior.
The second-floor playroom (19'6" x 15'6") is a bright, open recreational space with polished marble flooring and large windows for natural light and ventilation. Built-in shelving maximizes storage while keeping the central area uncluttered, ensuring flexibility for play and activities.
Playroom features a modern false ceiling with recessed lighting and modular shelving for flexible storage. Rounded furniture edges and open floor space ensure safety, organization, and a child-friendly, functional environment.
The gym features a recessed-lit false ceiling and carefully placed furniture for functional flow. Full-height glass facades with curtains and a personal motorbike display blend openness, privacy, and lifestyle-driven design.
The gym (31'6" x 40'0") features a recessed-lit false ceiling and floating cabinetry for a spacious, organized layout. Mirror walls, wooden flooring, and a neutral palette create a bright, functional, and motivating workout environment.
The study area (20'6" x 16'0") features a dual workstation layout with symmetrical desks and open floor space for ease of movement. White marble flooring, dark wood furniture, and recessed-lit ceilings create a bright, elegant, and focused workspace.
The study has an open central floor for easy movement, while a large window with sheer curtains fills the space with natural light and softens the ambience.
The spa features a built-in jacuzzi as the centerpiece, with a frosted glass partition for privacy and openness. Wall niches provide storage and display, blending functionality with elegant design.
The terrace is designed as a versatile outdoor space, seamlessly connecting the interior with the outdoors to enhance natural light, ventilation, and visual continuity. Dark stone flooring, textured walls, and wooden ceiling panels create a durable and functional environment.
The corridor on the third floor serves as a transitional space, linking private and semi-public areas with clear circulation. Polished marble floors, grey-veined elevator cladding, and minimal white walls create a luxurious, modern, and visually engaging passage.
Utility area is designed for efficiency, with a linear layout for washing, drying, and folding. Dark grey stone flooring, neutral beige walls, and polished wood accents create a functional space.
The terrace is a spacious open platform with unobstructed views and flexible use. The rectilinear layout and spiral staircase enhance circulation, connectivity, and visual interest.
You need to have at-least 2400sq ft of land. Minimum proposed construction area of about 4,500 sq ft is required for us to take it as a project. Less than that will not be a viable project for us.
We need to be paid an advance 'Retainer' Payment before we start working on a project.
Please make sure that you come with a mindset to give us maximum freedom for designing, so that we can deliver the best result to you.
You have to trust us totally, only then we can perform to our best capacity. To get this trust, please go through in detail, all the completed project photographs we have displayed in our website.
Our Experience in High-end, Luxury homes and our design sense are unmatchable in the field, whether among established or among the start-up firms.
We don’t just show the computer generated 3D images as many new start-up firms do. You can see many such examples all over internet. They can only show you the computer generated imaginary views, and cannot show the completed real life photos as you see in our site.
It is very easy to show a computer generated image. But it takes years of experience to bring it to reality. We excel in bringing out the design in reality, so that The final result invariably looks much better than what we showed in 3-D views .
Our designs are not 'run of the mill'. Each and every house or interior is custom designed to need and the requirement of the people who will use it. We impart so much thought process, hours of brain storming sessions, deep research work in to each and everyone of them. And it takes typically about 1.5 to 2 years to complete the results that you see in our website. This kind of result requires everyday involvement from us during the entire period of construction.
We charge on square foot basis. Hence, whether you use Vitrified tiles or Italian marble for flooring, our fee will be the same. So, when we suggest a costly finish, you will not get the feeling that we are doing it to hike our fee. At the same time we charge as per the Council of Architecture norms.
We also provide complete turnkey solutions, whether in construction or in interiors. So your involvement in the process of construction will be almost nil. But if you prefer to involve more in the process, you are always welcome.
We have a dedicated and experienced team of staff members who work tirelessly to bring our imagination to reality. They will support your building construction team by Involving in endless meetings and discussions with the contractors, and their site supervisors. Also they take special care in clearing all their doubts and questions.
Once a project design is finalised, we will allot a working team to your project. The head of the team will coordinate with the daytoday requirements of the contractor and their construction team. You can always call or meet the head of our team and get your doubts and questions clarified. If you are not satisfied with his/her answer, you are welcome to escalate the issue to the chief architect who will be glad to solve the issue.
If a certain staff is not available for taking care of your need, we always have a substitute who will be knowledgeable in your project and fill the absence of the previous one instantly. So that when you make a crucial call with an important doubt, you will never get a reply that the concerned person is not available.
We coordinate completely for getting approvals from Corporation / CMDA / DTCP for your project.
We have complete knowledge of all available latest technology and finishes like tiles, veneers, paints etc. We always pass on the architects discount to our clients. Besides, all the vendors will give you special rates as have long term relationship with them. Most importantly once they go through us, they will never think about compromising the quality of work. They know that the moment they do it they are out of good books.
Our engineers will periodically check the quality of construction as per the strict norms we have. During important stages of concreting our engineers will visit the site and they will sign and certify that the implementation is as per our drawing. The concreting can proceed only after this. If you prefer, we arrange for the site visits by our team more frequently at minimum extra fee.
We just don’t provide the drawings and wash our hands out. We will be with you safe guarding your interest until the complete hand over of the project. So we coordinating each and every stage of the construction. Because of this aspect, you might find our fee to be little more than our competitors. But the enormous value addition you get compensates much more than the little extra that you pay to us.
People spend enormous amounts for constructing their homes. But if the design is given to improper people who might make blunders in the design. For example, if they place one column in a wrong location, you are stuck with that column forever in your life. This negates the small saving you had in choosing a firm offering lesser fee than us. Please think about this before you finalise your architect.