Location: Pondicherry
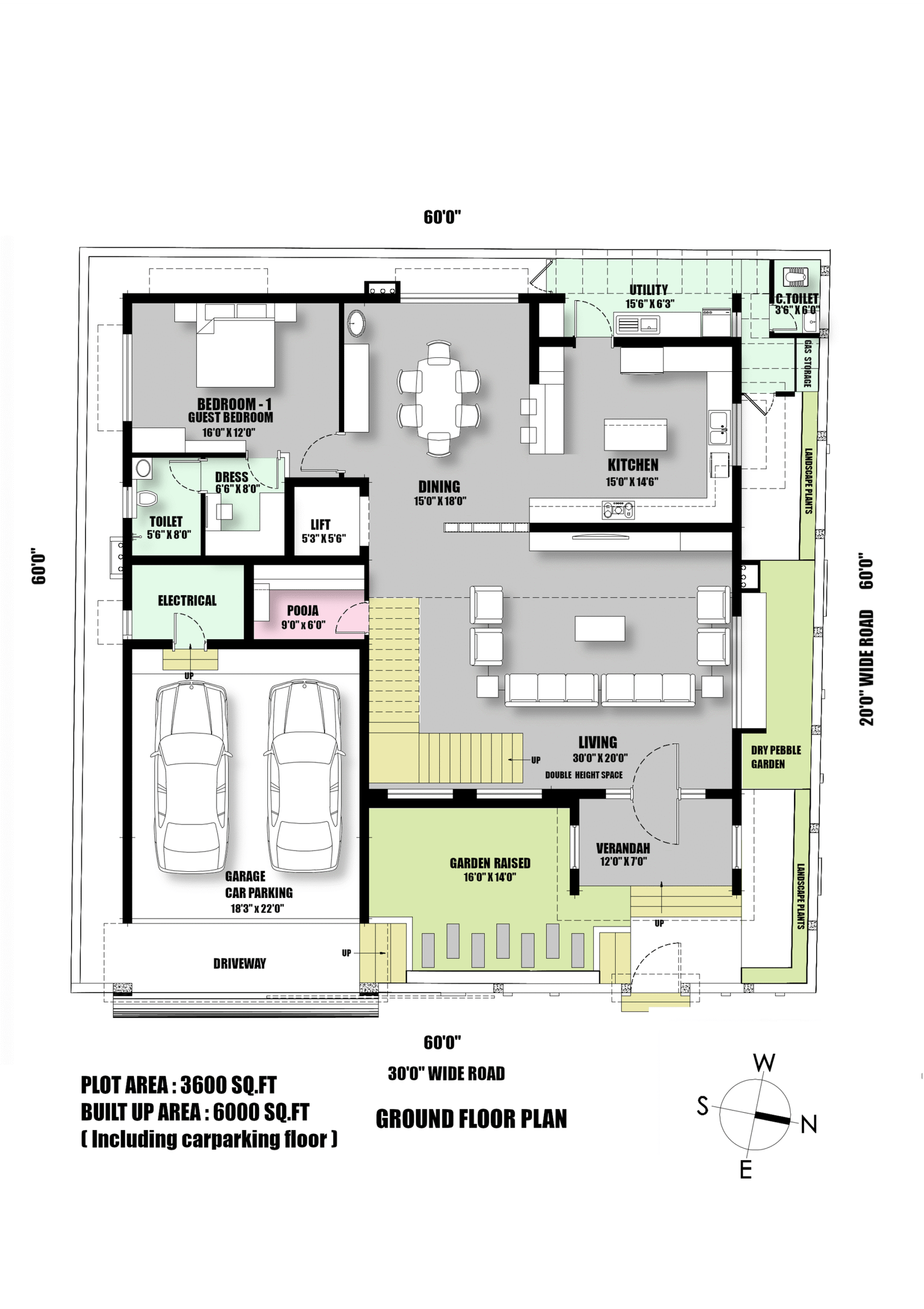
Land Area: 3600 Sq Ft
Built Up Area: 6000 Sq Ft
Client Name: Mr. Raja
Architectural Design: Ansari Architects
Interior Design: Ansari Architects
Maharaja House welcomes you through a grand and thoughtfully designed entrance that immediately establishes a sense of scale, elegance, and exclusivity. The approach and entry sequence are carefully planned to create a smooth transition from the exterior to the interior, setting the mood for the luxurious spaces that follow. Materials, proportions, and detailing at the entrance reflect the home’s royal character and architectural intent.
At the heart of the home lies a spacious double-height living area that forms the visual and social core of the house...
Maharaja House welcomes you through a grand and thoughtfully designed entrance that immediately establishes a sense of scale, elegance, and exclusivity. The approach and entry sequence are carefully planned to create a smooth transition from the exterior to the interior, setting the mood for the luxurious spaces that follow. Materials, proportions, and detailing at the entrance reflect the home’s royal character and architectural intent.
At the heart of the home lies a spacious double-height living area that forms the visual and social core of the house. Abundant natural light floods the space through tall openings, enhancing the sense of openness and volume. The vertical connection to the upper floor strengthens interaction between levels while maintaining a strong architectural presence. This space is ideal for both everyday living and hosting gatherings.
The dining area is seamlessly connected to the living space, forming an open-plan layout that promotes fluid movement and visual continuity. Its strategic positioning ensures convenience while retaining a sense of definition within the larger volume. The dining space is designed to comfortably accommodate family meals as well as formal occasions, balancing functionality with refined aesthetics.
The kitchen is designed as a highly efficient yet elegant workspace. A wide central island acts as a functional divider, separating the kitchen from adjacent spaces while maintaining openness. This island enhances workflow, supports multiple activities, and serves as an informal interaction zone. Premium finishes, ample storage, and smart planning ensure the kitchen remains both practical and visually clean.
A dedicated puja room is integrated into the layout to provide a peaceful spiritual retreat within the home. Custom wooden shelving and warm materials create a calm and sacred atmosphere. The design respects traditional values while blending seamlessly with the modern architectural language of the house.
The bedrooms are designed as private sanctuaries, emphasizing comfort, symmetry, and spatial balance. Each bedroom is proportioned to feel open and uncluttered, allowing for restful living. Thoughtful placement of furniture and openings ensures privacy, natural light, and ventilation.
Attached dressing areas enhance convenience and organization. Featuring floating vanities and integrated storage solutions, these spaces maintain a clean and contemporary appearance while maximizing functionality. The design minimizes visual clutter and supports everyday use with ease.
Bathrooms are carefully zoned to separate wet and dry areas, ensuring comfort and efficiency. Elegant finishes, refined fixtures, and warm lighting create a relaxing, spa-like environment. Each bathroom is designed to feel luxurious while remaining highly functional.
A dedicated study corner is thoughtfully planned to support focused work and learning. Positioned to offer privacy without isolation, the study space blends seamlessly into the home’s layout while providing a calm and productive environment.
Located on the upper floor, the family lounge serves as a cozy informal gathering space. This area encourages relaxation, conversation, and shared moments, offering a comfortable retreat away from the more formal spaces below.
The balcony is designed as an extension of the indoor living spaces, featuring comfortable seating beneath a decorative pergola. The pergola creates dynamic patterns of light and shade, enhancing the outdoor experience while providing protection from harsh sunlight. This space is ideal for relaxation throughout the day.
Outdoor areas include a tranquil pond surrounded by natural greenery, introducing a calming natural element into the home. The landscape design enhances visual appeal while creating a peaceful connection between built form and nature.
For wellness and entertainment, Maharaja House includes a sleek, well-equipped gym and a dedicated home theater. The theater features tiered recliners and acoustic design for an immersive viewing experience, offering luxury, comfort, and recreation within the home.
Watch Full video and share your thoughts in the comments : MAHARAJA HOUSE | Ultimate Palatial Luxury Home Tour in Pondicherry
The facade features textured finishes, large windows, and cantilevered balconies. A covered porch with steps and columns marks the grand entrance.
Glass railings on balconies enhance views and natural light, while the textured boundary wall ensures privacy and complements the building’s design.
The garden features a natural pond with water lilies, surrounded by rustic brick edging. Stone slab pathways set in grass blend functionality with lush greenery for a harmonious outdoor space.
The main entrance boasts a pivot wooden door with geometric lattice, frosted glass panels, natural stone walls, and a warm wooden ceiling for a stylish, inviting look.
The double-height living area offers spaciousness and connects visually to the upper floor with a glass balustrade and open staircase, enhancing light and openness.
Seamless flow from entrance to living area with glass panels enhancing light. Personalized with wall art and decor, and tall curtains highlighting vertical space.
Large windows with floor-to-ceiling curtains bring in natural light, creating an airy space. Polished marble floors add luxury, while dark wood ceiling panels provide warmth and contrast.
Open-plan living and dining areas are defined by a sleek partition with shelving, maintaining distinct zones while allowing light and views to flow freely.
The Puja room features a decorative wooden shelving unit that serves as a custom-built altar. Warm wood tones create a sacred and traditional ambiance.
The open-plan space connects the dining area to the kitchen through a wide wooden-framed opening. A breakfast bar with stools partially separates the kitchen, offering a functional and visual transition between zones.
The bedroom is spacious and thoughtfully arranged with the bed as the focal point. A subtle patterned accent wall adds texture, while the layout allows easy movement and balanced symmetry with side tables.
Thoughtfully designed bedroom with layered lighting, functional layout, and built-in shelving. Wall art and accents add personality, while access to an en-suite ensures privacy and comfort.
Built-in study unit with minimalist desk, sleek cabinetry, and contrasting finishes for a refined, functional workspace.
Thoughtfully zoned dressing and toilet areas with a floating vanity, integrated lighting, and sleek storage for a functional yet elegant layout.
Open first-floor family area with glass railings, offering views to the double-height living below and promoting light, connection, and safety.
Plush teal geometric paneling creates a bold feature wall behind the bed, complemented by pendant lights and minimal, serene decor.
A large window with teal Roman blinds and sheer curtains maximizes natural light, adds style, and ensures privacy with soft, diffused glow.
Warm, cozy bedroom with textured brick accent wall, ergonomic study corner, layered lighting, and ample storage for comfort and style.
Layered lighting and ergonomic design create a functional, comfortable, and stylish bedroom with thoughtful accents.
Sleek materials, smart storage, and minimalist design combine for a luxurious, functional, and elegant space.
Bright, streamlined dressing room design with smart storage and functional comfort for a clean, elegant interior.
Elegant bedroom with neutral tones, layered lighting, luxurious finishes, and a versatile layout for comfort and productivity.
Luxurious bedroom with white marble flooring, reflective accents, heavy drapes, ceiling fan, and ample storage for comfort and functionality.
Elegant bathroom featuring light beige marble walls, a white bathtub, handheld shower, and dark marble accent wall with integrated storage and greenery.
Stylish bathroom showcasing a white bathtub, dark marble accent wall with wall-mounted toilet, and a warm wooden vanity for a balanced, contemporary design.
Spacious balcony with cozy seating, decorative pergola, layered lighting, and seamless indoor-outdoor flow for relaxed social living.
Second floor floor home gym designed with sleek black marble accents, glossy tiled flooring, and layered lighting, featuring essential fitness equipment and a relaxing massage chair by large windows with warm brown curtains.
Home theater designed with tiered black leather recliners, warm wood flooring, acoustic wall panels, and subtle ambient lighting for an immersive cinematic experience.
You need to have at-least 2400sq ft of land. Minimum proposed construction area of about 4,500 sq ft is required for us to take it as a project. Less than that will not be a viable project for us.
We need to be paid an advance 'Retainer' Payment before we start working on a project.
Please make sure that you come with a mindset to give us maximum freedom for designing, so that we can deliver the best result to you.
You have to trust us totally, only then we can perform to our best capacity. To get this trust, please go through in detail, all the completed project photographs we have displayed in our website.
Our Experience in High-end, Luxury homes and our design sense are unmatchable in the field, whether among established or among the start-up firms.
We don’t just show the computer generated 3D images as many new start-up firms do. You can see many such examples all over internet. They can only show you the computer generated imaginary views, and cannot show the completed real life photos as you see in our site.
It is very easy to show a computer generated image. But it takes years of experience to bring it to reality. We excel in bringing out the design in reality, so that The final result invariably looks much better than what we showed in 3-D views .
Our designs are not 'run of the mill'. Each and every house or interior is custom designed to need and the requirement of the people who will use it. We impart so much thought process, hours of brain storming sessions, deep research work in to each and everyone of them. And it takes typically about 1.5 to 2 years to complete the results that you see in our website. This kind of result requires everyday involvement from us during the entire period of construction.
We charge on square foot basis. Hence, whether you use Vitrified tiles or Italian marble for flooring, our fee will be the same. So, when we suggest a costly finish, you will not get the feeling that we are doing it to hike our fee. At the same time we charge as per the Council of Architecture norms.
We also provide complete turnkey solutions, whether in construction or in interiors. So your involvement in the process of construction will be almost nil. But if you prefer to involve more in the process, you are always welcome.
We have a dedicated and experienced team of staff members who work tirelessly to bring our imagination to reality. They will support your building construction team by Involving in endless meetings and discussions with the contractors, and their site supervisors. Also they take special care in clearing all their doubts and questions.
Once a project design is finalised, we will allot a working team to your project. The head of the team will coordinate with the daytoday requirements of the contractor and their construction team. You can always call or meet the head of our team and get your doubts and questions clarified. If you are not satisfied with his/her answer, you are welcome to escalate the issue to the chief architect who will be glad to solve the issue.
If a certain staff is not available for taking care of your need, we always have a substitute who will be knowledgeable in your project and fill the absence of the previous one instantly. So that when you make a crucial call with an important doubt, you will never get a reply that the concerned person is not available.
We coordinate completely for getting approvals from Corporation / CMDA / DTCP for your project.
We have complete knowledge of all available latest technology and finishes like tiles, veneers, paints etc. We always pass on the architects discount to our clients. Besides, all the vendors will give you special rates as have long term relationship with them. Most importantly once they go through us, they will never think about compromising the quality of work. They know that the moment they do it they are out of good books.
Our engineers will periodically check the quality of construction as per the strict norms we have. During important stages of concreting our engineers will visit the site and they will sign and certify that the implementation is as per our drawing. The concreting can proceed only after this. If you prefer, we arrange for the site visits by our team more frequently at minimum extra fee.
We just don’t provide the drawings and wash our hands out. We will be with you safe guarding your interest until the complete hand over of the project. So we coordinating each and every stage of the construction. Because of this aspect, you might find our fee to be little more than our competitors. But the enormous value addition you get compensates much more than the little extra that you pay to us.
People spend enormous amounts for constructing their homes. But if the design is given to improper people who might make blunders in the design. For example, if they place one column in a wrong location, you are stuck with that column forever in your life. This negates the small saving you had in choosing a firm offering lesser fee than us. Please think about this before you finalise your architect.