Location: Sholinganallur, OMR
Land Area: 3,200 Sq. Ft
Built Up Area: 5,200 Sq. Ft
Architectural Design: Ansari Architects
Interior Design: Ansari Architects
The residence presents a refined contemporary façade defined by strong horizontal massing and asymmetrical rectilinear volumes. Wooden exterior elements, large glass openings, and layered planes add depth and warmth, while recessed lighting on the upper projections creates a striking floating effect at dusk.
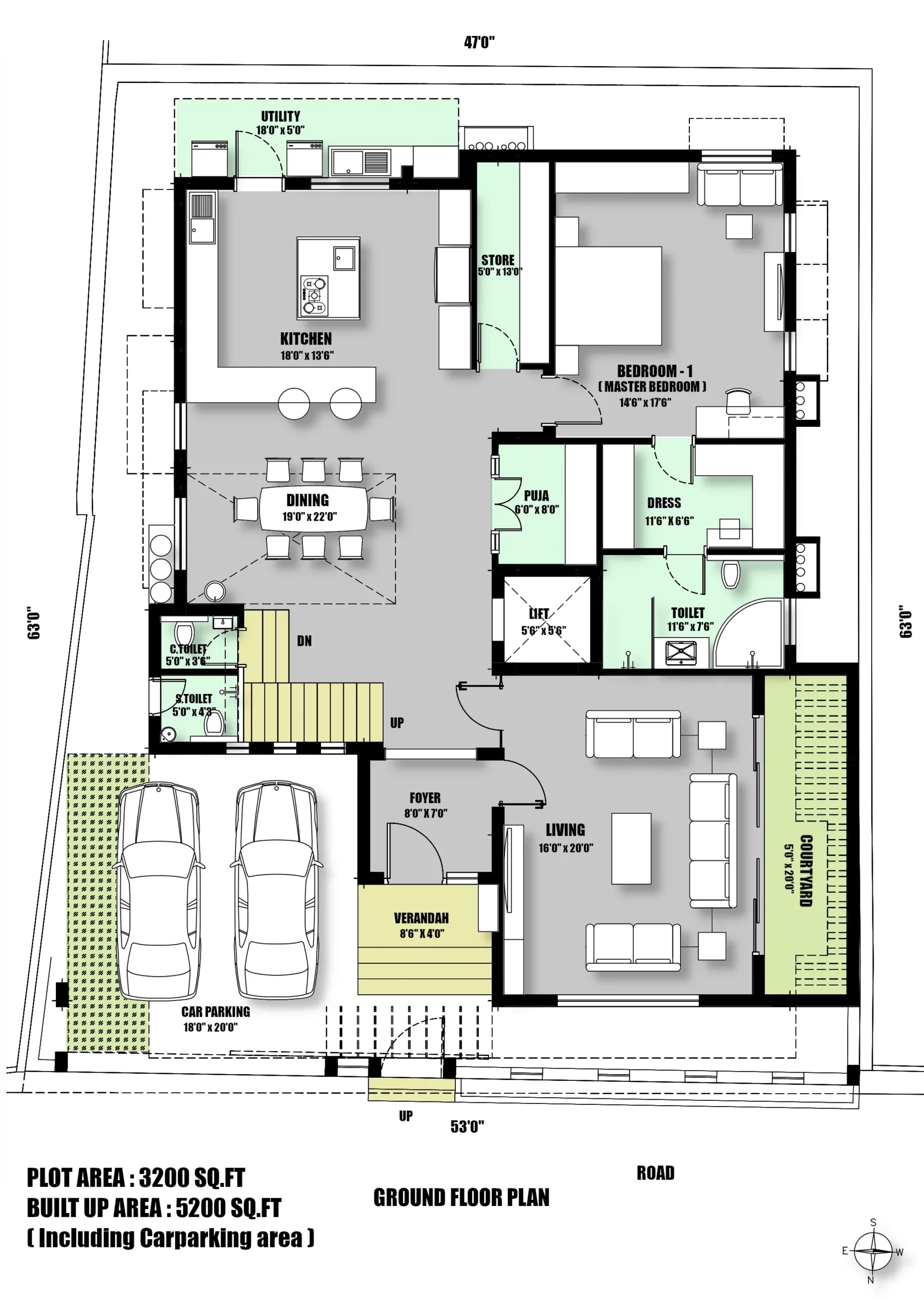
The car porch is designed as a seamless transition between the driveway and the main entrance, ensuring smooth vehicular movement. Natural stone flooring, wooden ceiling slats, integrated lighting, and soft landscaping together create a durable yet elegant arrival experience.
The verandah establishes a grand and welcoming entry through marble-clad steps a central...
The residence presents a refined contemporary façade defined by strong horizontal massing and asymmetrical rectilinear volumes. Wooden exterior elements, large glass openings, and layered planes add depth and warmth, while recessed lighting on the upper projections creates a striking floating effect at dusk.
The car porch is designed as a seamless transition between the driveway and the main entrance, ensuring smooth vehicular movement. Natural stone flooring, wooden ceiling slats, integrated lighting, and soft landscaping together create a durable yet elegant arrival experience.
The verandah establishes a grand and welcoming entry through marble-clad steps, a central wooden door with metal inlay detailing, and flanking glazed panels. Polished marble flooring, sandstone wall finishes, wooden ceilings, and symmetrical planters enhance the sense of balance and sophistication.
The foyer functions as a visually engaging transition space connecting the entrance to the living area. A custom wooden display unit paired with a laser-cut glass partition adds depth, warmth, and subtle zoning, while polished marble flooring and integrated lighting elevate the overall ambience.
Designed to feel open and expansive, the living room seamlessly connects to the adjoining courtyard through a large glass partition. Warm beige tones, polished flooring, and carefully curated furnishings create a calm and inviting atmosphere filled with natural light.
The centrally positioned TV wall anchors the space, while the open layout and glass-paneled doorway ensure smooth circulation and visual connectivity with surrounding areas.
The linear courtyard acts as a light-filled connector between interior spaces, featuring artificial turf, planter beds, and a skylight with slatted beams. Textured yellow walls, natural stone cladding, and wooden frames create a warm, earthy palette that enhances indoor–outdoor continuity.
The puja area is thoughtfully recessed into a niche, offering a serene and spiritually focused environment. An elevated deity platform, wooden shelving, and warm ambient lighting are complemented by dark marble flooring and soft beige walls, creating a calm and sacred atmosphere.
Centrally positioned, the dining area benefits from a double-height ceiling and visual connection to the staircase and indoor courtyard below. The glass-and-wood staircase adds openness, while the discreetly placed common toilet maintains privacy without disrupting spatial flow.
The kitchen is designed with a functional U-shaped layout and a central island that enhances workflow and efficiency. Glossy beige cabinetry, white quartz countertops, and layered lighting combine practicality with a refined, modern aesthetic.
An open-plan configuration connects the kitchen to the dining and living areas, promoting interaction, while recessed tray ceilings and pendant lights define the space with visual clarity.
The master bedroom follows a symmetrical layout centered around the bed, with floating side tables, pendant lighting, and an integrated study or vanity counter. Warm wooden flooring, beige and gold wall tones, and white-and-walnut furniture create a cozy yet elegant retreat.
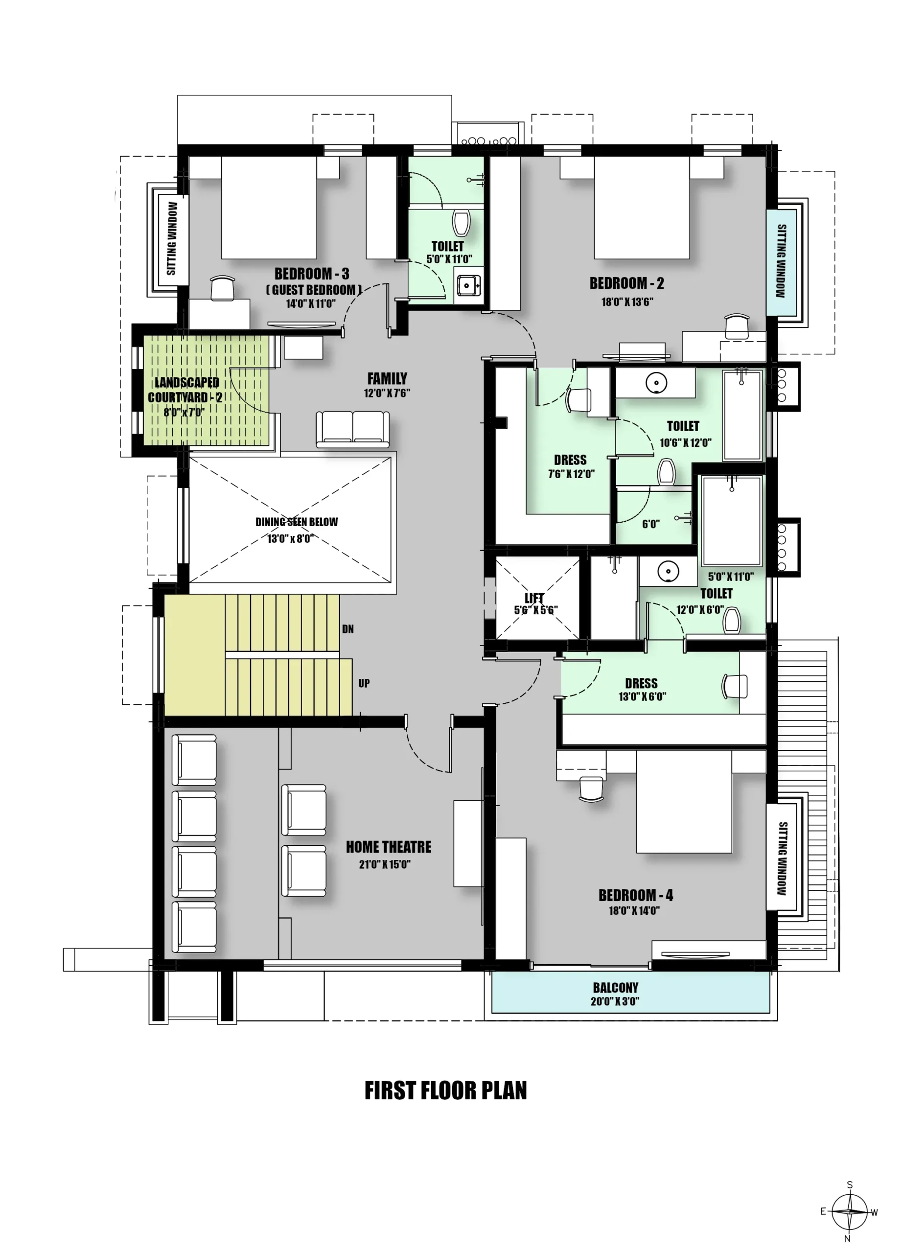
The additional bedrooms are designed for comfort and functionality, featuring well-balanced layouts with central beds, sliding wardrobes, integrated study desks, and window seating niches. Soft neutral colors, natural wood finishes, and padded headboards create inviting and restful personal spaces.
The family area serves as a connective hub linking bedrooms and the staircase around a double-height void. A glass railing and central green atrium enhance openness, while marble flooring, wooden accents, and layered lighting create a bright and welcoming shared space.
This courtyard is designed as a peaceful indoor retreat, featuring a vertical garden, sculptural seating, and layered greenery. Natural stone surfaces, wooden elements, and patterned glass panels work together to create a calm, light-filled environment.
The home theatre is an acoustically enclosed entertainment space designed for immersive viewing. Tiered seating, a ceiling-mounted projector, and strategically placed speakers ensure optimal sound and visuals, while dark finishes enhance screen focus and cinematic comfort.
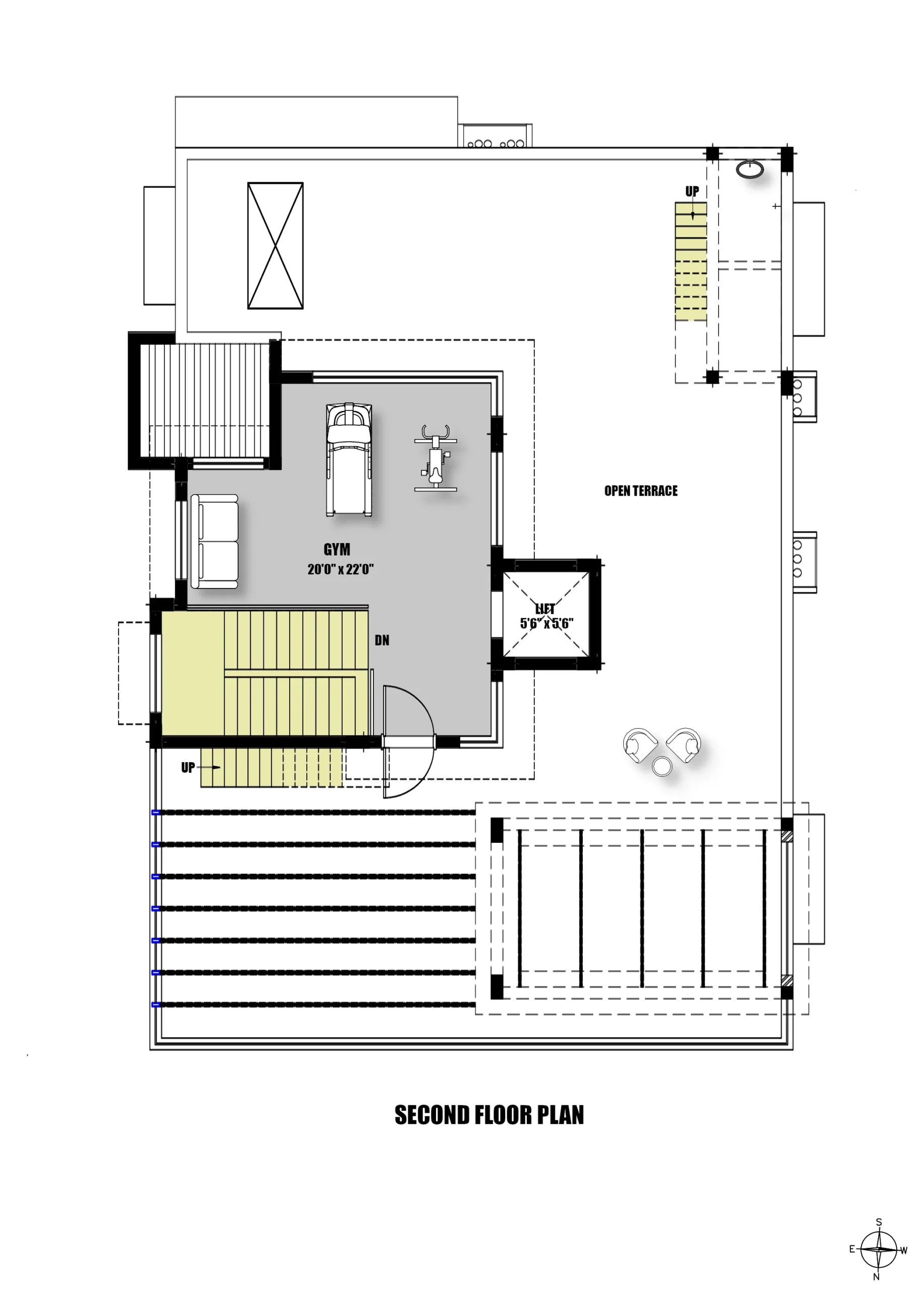
The gym room on the upper level combines a dedicated fitness zone with a casual lounge area, offering flexibility for both activity and relaxation. Wooden flooring, neutral wall tones, and glass railings maintain brightness while preserving visual continuity with the rest of the home.
The terrace is conceived as an open and versatile outdoor space, with a pergola structure defining zones and adding architectural rhythm. Glass railings maintain safety while preserving uninterrupted views, creating a seamless connection with the surrounding environment.
Watch Full video and share your thoughts in the comments : 4 Crore LUXURY HOME in OMR. Home Tour
The 18'0" × 20'0" sq. ft car porch functions as a seamless transition from driveway to entrance, offering efficient circulation and openness. Natural stone flooring, wooden ceiling slats, integrated lighting, and greenery create a durable, elegant, and harmonious space.
The 8'6" × 4'0" sq. ft verandah features marble-clad steps, a central wooden door with metal inlay, and side glazing for natural light. Polished marble flooring, sandstone walls, wooden ceilings, and symmetrical planters create a grand, elegant, and inviting entry space.
The 8'0" × 7'0" sq. ft foyer connects the entrance to the living area, featuring a custom wooden display unit and a glass partition with laser-cut patterns. Polished marble flooring, walnut shelving, and integrated lighting create a warm, elegant, and visually engaging transition space.
The 16'0" × 20'0" sq. ft living room seamlessly connects to the courtyard through a large glass partition, creating depth and natural light. Warm beige tones, polished flooring, and luxurious furnishings enhance comfort, while integrated lighting and greenery provide a calm, inviting ambiance.
The living room is centered around a TV wall, creating a cohesive focal point. The open layout and glass-paneled doorway ensure smooth circulation and visual connectivity with adjoining spaces.
The linear courtyard ( 5'0" x 20'0" sq. ft ) features artificial turf, planter beds, and a skylight with slatted beams, connecting interior spaces with natural light and greenery. Textured yellow walls, stone cladding, and wooden frames create a warm, earthy palette.
The puja area ( 6'0" x 8'0" sq. ft ) is recessed into a niche with an elevated deity platform, wooden shelves, and warm lighting, creating a serene and sacred space. Dark marble flooring, light beige walls, and wooden accents enhance the spiritual ambiance and visual focus.
The dining area ( 19'0" x 22'0" sq. ft ) is centrally placed with a double-height ceiling, a glass-and-wood staircase, and an indoor courtyard beneath, creating openness and visual connectivity. The common toilet is discreetly located to the right of the staircase, maintaining privacy while ensuring accessibility.
The kitchen area ( 18'0" x 13'6" sq. ft ) features a U-shaped layout with a central island, optimizing workflow, storage, and accessibility. Glossy beige cabinets, white quartz countertops, and layered lighting create a bright, functional, and elegant cooking space.
The open kitchen seamlessly connects to the dining and living areas, enhancing interaction and flow. Recessed tray ceilings and pendant lights define the space while adding visual interest.
The master bedroom ( 14'6" x 17'6" sq. ft ) is symmetrically designed with a central bed, floating side tables, pendant lights, and a study/vanity counter. Warm wooden flooring, beige and gold walls, and white-and-walnut furniture create a cozy, elegant, and balanced space.
The bedroom features a symmetrical layout with a central bed and sliding wardrobe opposite, ensuring balance and efficient storage. The design creates a bright, airy, and functional space.
The family area (12'0" × 7'6") acts as a connective hub, linking the staircase and bedrooms around a double-height void with a glass railing and central green atrium.
The family area near the staircase and courtyard acts as a fluid transitional space. Neutral marble finishes, warm wood accents, and layered lighting create a bright, open, and well-connected space.
This compact courtyard ( 8'0" x 7'0" ) features a vertical garden, sculptural seating, and layered greenery, using natural stone, wood, and patterned glass to create a calm, light-filled retreat.
The home theatre (21'0" x 15'0") features an acoustically treated, enclosed space with tiered seating, ceiling-mounted projector, and wall speakers for optimal sound and viewing. Dark finishes enhance screen contrast and focus, creating a premium cinematic experience.
Designed for immersive sound and comfort, it provides a focused and enjoyable cinematic experience.
The bedroom (18'0" x 13'6") is open and symmetrical, with a central bed, window seating nook, and integrated study desk for balanced functionality. Warm beige walls, natural wood flooring, and padded headboard panels create a cozy, modern, and elegant space.
The bedroom features wooden flooring, a large bed with white linens and a padded beige headboard, pendant lights, and a wooden wardrobe with mirrored panels. Brown textured wall coverings add warmth and elegance, creating a cozy and stylish space.
The guest bedroom on the first floor (14'0" x 11'0") features a compact, well-organized layout with a central bed, study desk, and cozy window seating. Warm beige walls, light wood flooring, and wood-and-white furnishings create a modern, comfortable, and inviting space.
Warm beige walls, light oak flooring, and a wardrobe combining white laminate with wood veneer. A tan leatherette headboard and wooden doors add texture and continuity, creating a cozy, modern space.
The bedroom (18'0" x 14'0") is symmetrically designed with a central bed, integrated study desk, and window seating nook for balanced functionality. Warm beige walls, natural wood flooring, and a padded beige leatherette headboard create a cozy, modern, and elegant space.
Seamlessly connecting to the balcony via floor-to-ceiling glass sliding doors, the space is bright and open. A side-wall wardrobe maintains balance while maximizing functional space.
The 20'0" x 22'0" gym room on the second floor combines a fitness zone with a casual lounge, offering flexibility for workouts and relaxation. Warm wooden flooring, neutral walls, and glass railings create an open, bright, and inviting space.
The terrace is a versatile outdoor space, with a pergola defining zones and glass railings ensuring safety and unobstructed views. Its open layout enhances openness, continuity, and connection with the surroundings.
The facade features horizontal massing and asymmetrical rectilinear volumes, creating depth and visual interest. Balconies and glazing add transparency, while upper-floor projections with recessed lighting enhance a dynamic, floating effect.
A house with wooden exterior elements and large glass windows glows warmly at dusk. Clean lines, layered facades, and subtle lighting reflect a refined, contemporary architectural design.
You need to have at-least 2400sq ft of land. Minimum proposed construction area of about 4,500 sq ft is required for us to take it as a project. Less than that will not be a viable project for us.
We need to be paid an advance 'Retainer' Payment before we start working on a project.
Please make sure that you come with a mindset to give us maximum freedom for designing, so that we can deliver the best result to you.
You have to trust us totally, only then we can perform to our best capacity. To get this trust, please go through in detail, all the completed project photographs we have displayed in our website.
Our Experience in High-end, Luxury homes and our design sense are unmatchable in the field, whether among established or among the start-up firms.
We don’t just show the computer generated 3D images as many new start-up firms do. You can see many such examples all over internet. They can only show you the computer generated imaginary views, and cannot show the completed real life photos as you see in our site.
It is very easy to show a computer generated image. But it takes years of experience to bring it to reality. We excel in bringing out the design in reality, so that The final result invariably looks much better than what we showed in 3-D views .
Our designs are not 'run of the mill'. Each and every house or interior is custom designed to need and the requirement of the people who will use it. We impart so much thought process, hours of brain storming sessions, deep research work in to each and everyone of them. And it takes typically about 1.5 to 2 years to complete the results that you see in our website. This kind of result requires everyday involvement from us during the entire period of construction.
We charge on square foot basis. Hence, whether you use Vitrified tiles or Italian marble for flooring, our fee will be the same. So, when we suggest a costly finish, you will not get the feeling that we are doing it to hike our fee. At the same time we charge as per the Council of Architecture norms.
We also provide complete turnkey solutions, whether in construction or in interiors. So your involvement in the process of construction will be almost nil. But if you prefer to involve more in the process, you are always welcome.
We have a dedicated and experienced team of staff members who work tirelessly to bring our imagination to reality. They will support your building construction team by Involving in endless meetings and discussions with the contractors, and their site supervisors. Also they take special care in clearing all their doubts and questions.
Once a project design is finalised, we will allot a working team to your project. The head of the team will coordinate with the daytoday requirements of the contractor and their construction team. You can always call or meet the head of our team and get your doubts and questions clarified. If you are not satisfied with his/her answer, you are welcome to escalate the issue to the chief architect who will be glad to solve the issue.
If a certain staff is not available for taking care of your need, we always have a substitute who will be knowledgeable in your project and fill the absence of the previous one instantly. So that when you make a crucial call with an important doubt, you will never get a reply that the concerned person is not available.
We coordinate completely for getting approvals from Corporation / CMDA / DTCP for your project.
We have complete knowledge of all available latest technology and finishes like tiles, veneers, paints etc. We always pass on the architects discount to our clients. Besides, all the vendors will give you special rates as have long term relationship with them. Most importantly once they go through us, they will never think about compromising the quality of work. They know that the moment they do it they are out of good books.
Our engineers will periodically check the quality of construction as per the strict norms we have. During important stages of concreting our engineers will visit the site and they will sign and certify that the implementation is as per our drawing. The concreting can proceed only after this. If you prefer, we arrange for the site visits by our team more frequently at minimum extra fee.
We just don’t provide the drawings and wash our hands out. We will be with you safe guarding your interest until the complete hand over of the project. So we coordinating each and every stage of the construction. Because of this aspect, you might find our fee to be little more than our competitors. But the enormous value addition you get compensates much more than the little extra that you pay to us.
People spend enormous amounts for constructing their homes. But if the design is given to improper people who might make blunders in the design. For example, if they place one column in a wrong location, you are stuck with that column forever in your life. This negates the small saving you had in choosing a firm offering lesser fee than us. Please think about this before you finalise your architect.