Location: ECR
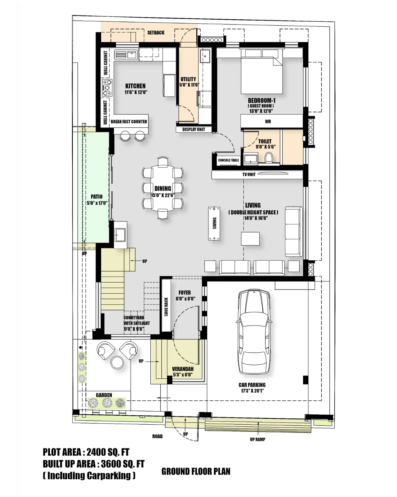
Land Area: 2,400 Sq. Ft
Built Up Area: 3600 Sq. ft
Architectural Design: Ansari Architects
Interior Design: Ansari Architects
The modern exterior features a rectilinear form with strong horizontal lines, cantilevered balconies, and dynamic volumes. The façade combines white plaster, wood-textured cladding, glass railings, and stone accents for a warm, contemporary look. The main gate blends wood and metal, while glass balcony railings ensure openness. A perforated terrace pergola adds shade and style, and landscaped boundary greenery softens the modern exterior.
The semi-covered car parking offers protection and openness, with a rectilinear layout for easy access. Integrated walls, gate, and ceiling create a cohesive design, while open boundaries allow natural light and ventilation.
Verandah...
The modern exterior features a rectilinear form with strong horizontal lines, cantilevered balconies, and dynamic volumes. The façade combines white plaster, wood-textured cladding, glass railings, and stone accents for a warm, contemporary look. The main gate blends wood and metal, while glass balcony railings ensure openness. A perforated terrace pergola adds shade and style, and landscaped boundary greenery softens the modern exterior.
The semi-covered car parking offers protection and openness, with a rectilinear layout for easy access. Integrated walls, gate, and ceiling create a cohesive design, while open boundaries allow natural light and ventilation.
The verandah guides visitors from the gate to the entrance with an elevated platform. Dark granite floors, travertine walls, and wooden ceilings create a warm, elegant palette. Metal accents, window grills, and planters enhance modern aesthetics while ensuring light, safety, and style.
The foyer welcomes visitors with a rectilinear layout leading to the main living area. Warm wood finishes, marble flooring, and frosted glass panels create a sophisticated, inviting palette. Built-in seating, decorative niches, and layered lighting balance functionality with modern architectural detailing.
The double-height living area enhances openness and light, with tall windows emphasizing verticality. Neutral marble flooring, wooden furniture, and a pastel sofa create a balanced, warm palette. A custom swing, sleek furnishings, and minimal décor blend modern minimalism with subtle traditional character.
The open-plan layout seamlessly integrates living, dining, and kitchen areas, with a custom swing adding warmth and character. Beige marble floors, wooden panels, and cream walls create a bright, cohesive palette. Minimalist furnishings, layered lighting, and clean lines ensure a modern, functional, and elegant space.
The centrally placed dining table links living, kitchen, and circulation zones, while the staircase adds vertical depth. Polished marble floors, wooden ceilings, and cream walls create a warm, bright, and cohesive palette. Minimalist cabinetry, glass railings, and layered lighting ensure a modern, elegant, and functional interior.
The utility area beneath the staircase efficiently transforms underused space into a functional seating and storage zone. A linear layout and end window maintain openness, natural light, and smooth circulation.
The U-shaped kitchen optimizes workflow with an ergonomic work triangle and ample counter space. White quartz countertops and beige marble floors create a sleek, continuous look, while wooden ceiling bands and door frames add warmth and texture to the modern design.
The guest bedroom features a centered bed with vertical windows and floating nightstands. Beige tones, wood accents, and an upholstered headboard create warmth, while recessed and pendant lighting enhance the minimalist, inviting design.
Bedroom 2 for the second daughter features an open, symmetrical layout with a central bed and study area by the window. White marble floors, beige walls, and pastel furniture create a bright, youthful space. Layered lighting and minimal furnishings keep the room functional, modern, and airy.
The 1st daughter’s bedroom features a central bed with symmetrical windows, built-in seating, and a mirrored panel. Warm wood, beige walls, and deep blue accents create a balanced palette. Floating furniture, recessed lighting, and integrated niches keep the space modern, functional, and elegant.
Master Bedroom 4 has a central bed and a study corner by the window. Whites, warm wood, and deep blue create a balanced palette. Recessed lighting and minimalist furniture ensure a modern, functional, and elegant space.A central bed faces a TV wall, forming a balanced, functional focal point. Large windows with sheer and blackout curtains fill the room with natural light and connect it to the outdoors. Doors are placed for smooth circulation and privacy.The balcony has wood-finish flooring, glass railings, and beige travertine walls for a warm, modern feel. Sliding doors, recessed lighting, and metal grill details enhance openness and the connection to the outdoors.
The rectilinear courtyard is a central open space linking the surrounding structures. A lush lawn, layered plants, and private walls create a calm, balanced outdoor area. It is open and versatile, suitable for gatherings, play, or relaxation, with layered vegetation creating privacy. Subtle drainage, a gate, and driveway maintain functionality while preserving visual symmetry.
Columns and beams with clean lines highlight modern minimalism. Roof extensions add solar panels and shading for sustainability, while hidden utilities and proper drainage keep the space functional and orderly.The terrace features terracotta flooring, a decorative pergola, and glass railings, perfect for yoga, relaxation, or gatherings. Natural light, ventilation, and integrated lighting create a comfortable, functional, and visually appealing outdoor space.
The modern exterior features a rectilinear form with strong horizontal lines, cantilevered balconies, and dynamic volumes. The facade combines white plaster, wood-textured cladding, glass railings, and stone accents for a warm, contemporary look.
The main gate blends wood and metal, while glass balcony railings ensure openness. A perforated terrace pergola adds shade and style, and landscaped boundary greenery softens the modern exterior.
The semi-covered car parking offers protection and openness, with a rectilinear layout for easy access. Integrated walls, gate, and ceiling create a cohesive design, while open boundaries allow natural light and ventilation.
The verandah guides visitors from gate to entrance with an elevated platform. Dark granite floors, travertine walls, and wooden ceilings create a warm, elegant palette. Metal accents, window grills, and planters enhance modern aesthetics while ensuring light, safety, and style.
The foyer welcomes visitors with a rectilinear layout leading to the main living area. Warm wood finishes, marble flooring, and frosted glass panels create a sophisticated, inviting palette. Built-in seating, decorative niches, and layered lighting balance functionality with modern architectural detailing.
The double-height living area enhances openness and light, with tall windows emphasizing verticality. Neutral marble flooring, wooden furniture, and a pastel sofa create a balanced, warm palette. A custom swing, sleek furnishings, and minimal décor blend modern minimalism with subtle traditional character.
The open-plan layout seamlessly integrates living, dining, and kitchen areas, with a custom swing adding warmth and character. Beige marble floors, wooden panels, and cream walls create a bright, cohesive palette. Minimalist furnishings, layered lighting, and clean lines ensure a modern, functional, and elegant space.
The centrally placed dining table links living, kitchen, and circulation zones, while the staircase adds vertical depth. Polished marble floors, wooden ceilings, and cream walls create a warm, bright, and cohesive palette.
Minimalist cabinetry, glass railings, and layered lighting ensure a modern, elegant, and functional interior.
The utility area beneath the staircase efficiently transforms underused space into a functional seating and storage zone. A linear layout and end window maintain openness, natural light, and smooth circulation.
The U-shaped kitchen optimizes workflow with an ergonomic work triangle and ample counter space.
White quartz countertops and beige marble floors create a sleek, continuous look, while wooden ceiling bands and door frames add warmth and texture to the modern design.
The guest bedroom features a centered bed with vertical windows and floating nightstands. Beige tones, wood accents, and an upholstered headboard create warmth, while recessed and pendant lighting enhance the minimalist, inviting design.
A stylish wardrobe wall and optimized circulation define the guest bedroom. Warm beige and wood tones create a calm, inviting palette, while handle-less storage and recessed lighting ensure a sleek, minimalist design.
The first-floor family lounge and study area use an open-plan layout with seating by the window. Beige marble floors, cream walls, and wooden accents create a warm, balanced palette. Recessed lighting, built-in seating, and a curtain partition add functionality and elegance.
A wooden frame partition defines each zone without closing it off. Three large windows fill the space with natural light, perfect for reading, studying, or relaxing.
The pantry sits beside the living area with a framed entry for subtle separation. Its compact layout supports smooth circulation and everyday functionality.
Bedroom 2 for the second daughter both feature open, symmetrical layouts with central beds and study areas by the windows. White marble floors, beige walls, and pastel furniture create bright, youthful spaces. Layered lighting and minimal furnishings keep both rooms functional, modern, and airy.
A white study desk with pastel blue accents adds a youthful touch. Wooden doors provide natural contrast, grounding the light, airy space.
The 1st daughter’s bedroom features a central bed with symmetrical windows, built-in seating, and a mirrored panel. Warm wood, beige walls, and deep blue accents create a balanced palette. Floating furniture, recessed lighting, and integrated niches keep the space modern, functional, and elegant.
A wardrobe wall as a focal point, and a floating console for openness. Warm wood, white, and blue accents create a balanced, inviting palette. Hexagonal shelves and recessed lighting add depth, functionality, and modern elegance.
Master Bedroom 4 has a central bed and a study corner by the window. Whites, warm wood, and deep blue create a balanced palette. Recessed lighting and minimalist furniture ensure a modern, functional, and elegant space.
The symmetrical layout ensures balance and smooth circulation. Warm tones, minimalist furniture, and integrated lighting create a modern, functional, and elegant space.
A central bed faces a TV wall, forming a balanced, functional focal point. Large windows with sheer and blackout curtains fill the room with natural light and connect it to the outdoors. Doors are placed for smooth circulation and privacy.
The balcony has wood-finish flooring, glass railings, and beige travertine walls for a warm, modern feel. Sliding doors, recessed lighting, and metal grill details enhance openness and the connection to the outdoors.
The rectilinear courtyard is a central open space linking the surrounding structures. A lush lawn, layered plants, and private walls create a calm, balanced outdoor area.
The courtyard is open and versatile, suitable for gatherings, play, or relaxation, with layered vegetation creating privacy. Subtle drainage, a gate, and driveway maintain functionality while preserving visual symmetry.
Columns and beams with clean lines highlight modern minimalism. Roof extensions add solar panels and shading for sustainability, while hidden utilities and proper drainage keep the space functional and orderly.
The terrace features terracotta flooring, a decorative pergola, and glass railings, perfect for yoga, relaxation, or gatherings. Natural light, ventilation, and integrated lighting create a comfortable, functional, and visually appealing outdoor space.
You need to have at-least 1500sq ft of land. Minimum proposed construction area of about 4,000 sq ft is required for us to take it as a project. Less than that will not be a viable project for us.
We need to be paid an advance 'Retainer' Payment before we start working on a project.
Please make sure that you come with a mindset to give us maximum freedom for designing, so that we can deliver the best result to you.
You have to trust us totally, only then we can perform to our best capacity. To get this trust, please go through in detail, all the completed project photographs we have displayed in our website.
Our Experience in High-end, Luxury homes and our design sense are unmatchable in the field, whether among established or among the start-up firms.
We don’t just show the computer generated 3D images as many new start-up firms do. You can see many such examples all over internet. They can only show you the computer generated imaginary views, and cannot show the completed real life photos as you see in our site.
It is very easy to show a computer generated image. But it takes years of experience to bring it to reality. We excel in bringing out the design in reality, so that The final result invariably looks much better than what we showed in 3-D views .
Our designs are not 'run of the mill'. Each and every house or interior is custom designed to need and the requirement of the people who will use it. We impart so much thought process, hours of brain storming sessions, deep research work in to each and everyone of them. And it takes typically about 1.5 to 2 years to complete the results that you see in our website. This kind of result requires everyday involvement from us during the entire period of construction.
We charge on square foot basis. Hence, whether you use Vitrified tiles or Italian marble for flooring, our fee will be the same. So, when we suggest a costly finish, you will not get the feeling that we are doing it to hike our fee. At the same time we charge as per the Council of Architecture norms.
We also provide complete turnkey solutions, whether in construction or in interiors. So your involvement in the process of construction will be almost nil. But if you prefer to involve more in the process, you are always welcome.
We have a dedicated and experienced team of staff members who work tirelessly to bring our imagination to reality. They will support your building construction team by Involving in endless meetings and discussions with the contractors, and their site supervisors. Also they take special care in clearing all their doubts and questions.
Once a project design is finalised, we will allot a working team to your project. The head of the team will coordinate with the daytoday requirements of the contractor and their construction team. You can always call or meet the head of our team and get your doubts and questions clarified. If you are not satisfied with his/her answer, you are welcome to escalate the issue to the chief architect who will be glad to solve the issue.
If a certain staff is not available for taking care of your need, we always have a substitute who will be knowledgeable in your project and fill the absence of the previous one instantly. So that when you make a crucial call with an important doubt, you will never get a reply that the concerned person is not available.
We coordinate completely for getting approvals from Corporation / CMDA / DTCP for your project.
We have complete knowledge of all available latest technology and finishes like tiles, veneers, paints etc. We always pass on the architects discount to our clients. Besides, all the vendors will give you special rates as have long term relationship with them. Most importantly once they go through us, they will never think about compromising the quality of work. They know that the moment they do it they are out of good books.
Our engineers will periodically check the quality of construction as per the strict norms we have. During important stages of concreting our engineers will visit the site and they will sign and certify that the implementation is as per our drawing. The concreting can proceed only after this. If you prefer, we arrange for the site visits by our team more frequently at minimum extra fee.
We just don’t provide the drawings and wash our hands out. We will be with you safe guarding your interest until the complete hand over of the project. So we coordinating each and every stage of the construction. Because of this aspect, you might find our fee to be little more than our competitors. But the enormous value addition you get compensates much more than the little extra that you pay to us.
People spend enormous amounts for constructing their homes. But if the design is given to improper people who might make blunders in the design. For example, if they place one column in a wrong location, you are stuck with that column forever in your life. This negates the small saving you had in choosing a firm offering lesser fee than us. Please think about this before you finalise your architect.