Location: Arumbakkam
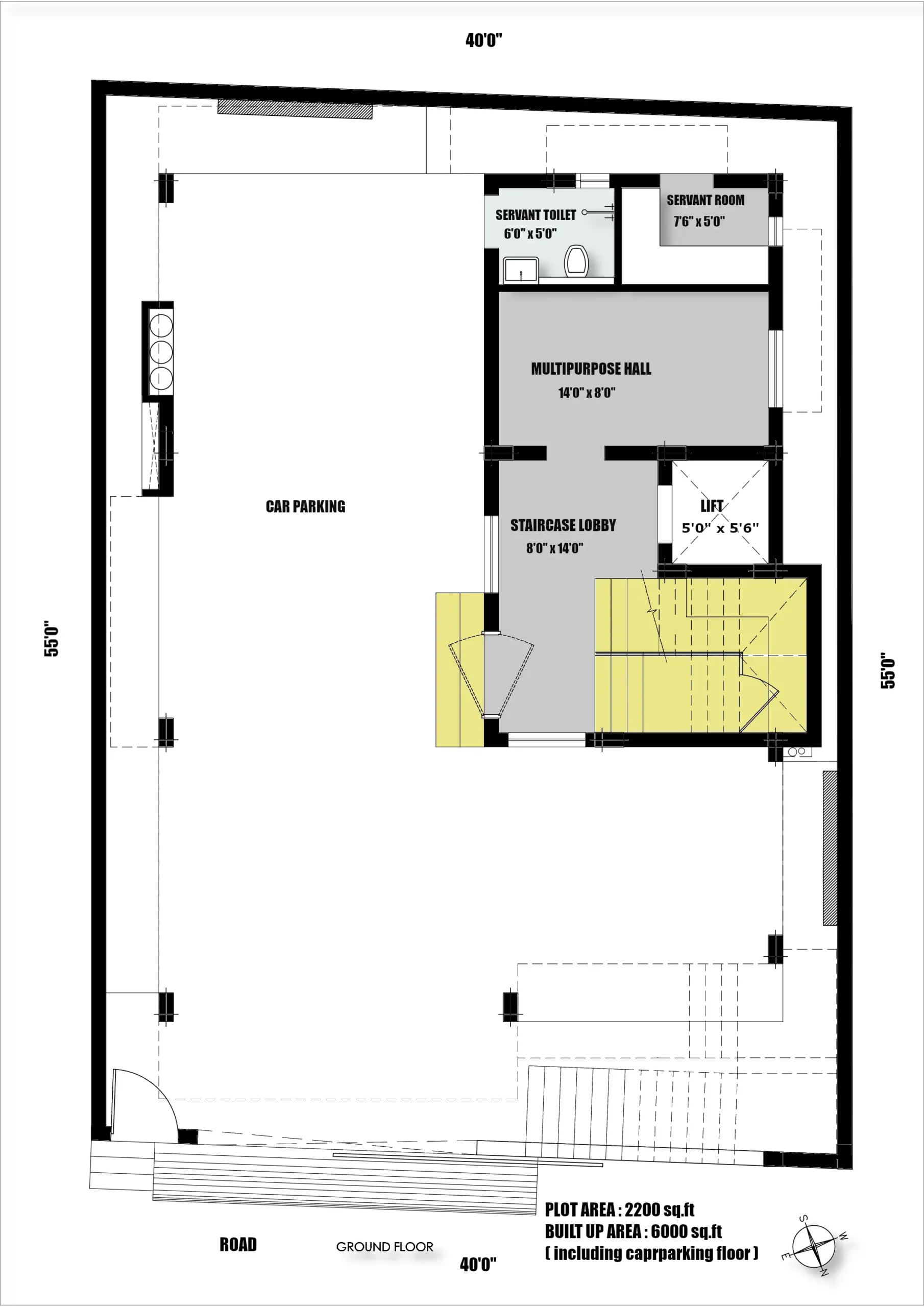
Land Area: 2200 sq.ft
Built Up Area: 6000 sq.ft
Architectural Design: Ansari Architects
Interior Design: Ansari Architects
Experience a Compact Luxury House featuring elegant interiors, premium finishes, modern amenities, landscaped stilt-floor parking, and a stylish, functional living environment. This compact luxury house also showcases stone cladding, glass balconies, and wooden accents. The stilt-floor parking ensures openness, supported by thoughtful landscaping, slate stone pillars, and smooth circulation through two staircases. Inside, marble steps, glass railings, ambient lighting, and a sleek lift lobby blend functionality with sophistication, creating a refined and comfortable living experience.
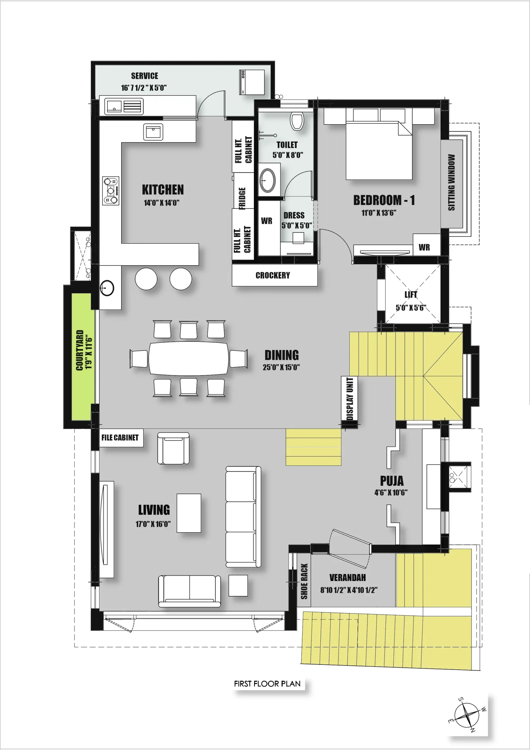
The puja area is designed to blend elegance with functionality Dark flooring clearly defines the space while a subtle...
Experience a Compact Luxury House featuring elegant interiors, premium finishes, modern amenities, landscaped stilt-floor parking, and a stylish, functional living environment. This compact luxury house also showcases stone cladding, glass balconies, and wooden accents. The stilt-floor parking ensures openness, supported by thoughtful landscaping, slate stone pillars, and smooth circulation through two staircases. Inside, marble steps, glass railings, ambient lighting, and a sleek lift lobby blend functionality with sophistication, creating a refined and comfortable living experience.
The puja area is designed to blend elegance with functionality. Dark flooring clearly defines the space, while a subtle partition wall adds depth without interrupting openness. Diana marble with horizontal grains enhances visual continuity and brings a refined, luxurious touch. Large glass windows on both sides allow ample natural light to illuminate the shrine, creating a peaceful and uplifting ambiance throughout the day. The marble surface also ensures easy maintenance and protects against incense or lamp smoke, making this sacred corner both beautiful and practical.
The double-height living room creates a strong sense of openness, enhanced by a nearly 15-foot ceiling and abundant natural light from a 16 × 9 ft laminated glass window. Cross-ventilation keeps the room bright and airy throughout the day. The TV unit features patterned wallpaper, an accent wall, and copper-tinted beveled glass for a stylish visual appeal. A remote-controlled rolling shutter is neatly concealed within the design for safety and convenience. Thoughtful partitions provide practical storage, while the foyer’s level difference adds a distinctive architectural touch to the space.
The dining area exudes elegance with Italian marble flooring, warm live-wood furniture, and rich veneer finishes. A small courtyard featuring ethnic décor and natural planters adds visual interest and a touch of greenery. The quartz breakfast counter provides practicality for daily use, while the glass partition maintains openness between the dining and living areas. Centralized air conditioning ensures a comfortable environment without compromising the clean, sophisticated aesthetic. Designed for both style and functionality, this dining space offers a refined atmosphere ideal for family meals, social gatherings, and relaxed dining experiences.
This modern acrylic, handleless kitchen combines aesthetic elegance with practical design. Dark cabinetry contrasts beautifully with light cappuccino marble flooring, while the bold red staircase backdrop adds a contemporary visual highlight. Equipped with a Faber chimney and stove, a stainless steel sink with an extendable tap, RO provision, and a Bosch OTG oven, the kitchen supports efficient everyday cooking. Full-height units around the refrigerator, a chef pantry, pull-out drawers, and thoughtfully placed niches create a highly organized layout. Cutout panels and seamless finishes ensure the kitchen remains stylish, functional, and easy to maintain.
This bedroom is designed to provide warmth, comfort, and visual balance through rich veneer finishes and soft ambient lighting. A U-shaped window seat brings in natural daylight while offering a cozy spot for reading or relaxation. The wooden headboard with illuminated niches adds both decorative and functional appeal, complementing the low platform bed and beige-toned walls. Sleek white wardrobes provide ample storage without overwhelming the room, while a stylish wall-mounted TV unit with wooden accents enhances modern convenience. Marble flooring and recessed ceiling lighting complete the room’s calm and sophisticated ambiance.
The master bedroom is a peaceful and elegant space featuring a refined teal theme, a super king-size bed, elegant paneling, and an 8-foot seating window that brings abundant daylight indoors. Teal textured walls, a sleek study corner, marble flooring, recessed ceiling lighting, and minimalist wooden doors with frosted glass panels create a sophisticated and functional environment. The adjoining spacious dressing room includes glossy white wardrobes, a convertible dressing mirror, ample storage, and subtle veneer detailing, combining luxury and practicality. Thoughtfully designed interior corners with frosted glass doors, wooden framing, and stylish ceiling panels complete this master suite, offering elegance, comfort, and timeless appeal.
kids’ bedroom combines privacy, functionality, and comfort. A entry corridor keeps the bed out of direct view, while a conveniently positioned compact toilet adds practicality. The warm American walnut wardrobe and mirror-finish loft maximize storage while maintaining a visually open feel. The highlight of the room is an L-shaped sitting window with fixed glass that brings in abundant natural light, creating a bright and cozy space for reading, relaxing, or enjoying outdoor views. Thoughtful layout and design ensure the bedroom is both playful and practical, providing a comfortable and inviting environment for everyday use.
Bedroom combines elegance and entertainment within a compact layout. Dark-toned furnishings, a layered ceiling design, ambient lighting, and natural veneer details create a sophisticated ambiance. A Denon home theater system elevates the leisure experience, while centralized AC ensures comfort year-round. The room also features a padded headboard, wooden paneling, warm lighting, floor-to-ceiling curtains, marble flooring, and a comfortable armchair, offering a harmonious blend of luxury, style, and relaxation. Large glass doors open to a balcony, connecting the indoor space with natural light and outdoor views, making the room feel spacious and inviting.
The third-floor staircase is a seamless blend of elegance and practicality, designed to create a refined transition between levels. Full marble cladding and rich walnut veneer ceilings set a luxurious tone, while custom wooden niches and curated décor add visual interest and sophistication. The layout is thoughtfully planned to ensure smooth circulation, connecting the spaces on this floor efficiently and gracefully. Layered textures, premium finishes, and attention to detail enhance the overall aesthetic, making the staircase not only a functional element but also a striking architectural feature that elevates the ambiance of the third floor.
Gym combines luxury, functionality, and style to create a premium fitness space. Marble flooring and a veneer-finished ceiling set a sophisticated tone, while modern gym equipment, a custom cabinet, TV, and audio systems provide all the essentials for a complete workout experience. A full-wall beveled copper mirror enhances the sense of space and visual depth, while a sitting window allows natural light to fill the room, creating an open and inviting atmosphere. An attached special room adds versatility, making the gym not only practical for daily use but also aesthetically rich, reflecting careful attention to design and detail throughout the area.
This terrace combines elegance, functionality, and durability to create a luxurious outdoor space. Resilient WPC flooring and sleek grey tiles offer a stylish, low-maintenance foundation. Decorative grill panels, planter boxes, and lush greenery enhance visual appeal while adding a vibrant natural touch. Dedicated sunbathing areas, well-placed accent lighting, and glass features create a bright, serene, and inviting ambiance. Practical access and a thoughtful layout ensure ease of use for daily activities or entertaining guests. Designed for both leisure and relaxation, this terrace serves as a perfect outdoor retreat, blending comfort, style, and a refreshing connection to nature.
Watch the full house tour to explore more design details : 2200 Sq ft LUXURY வீடு எப்படி இருக்கும்? LUXURY HOME in 2200 Sq. ft
A detailed review of this 2200 sq.ft luxury home after four years, showcasing material durability, system performance, and timeless interior design.
First Floor - the pooja area features dark flooring, a partition, Diana marble with horizontal grain, and glass windows, combining elegance, divinity, natural light, and easy maintenance.
The TV unit with patterned wallpaper, decorative accent wall, copper beveled glass, rolling shutter, and partitions blends luxury, practicality, and distinct spatial character with the foyer’s level difference.
The double-height living room features brown leather sofas, a laminated glass window, and cross-ventilation, creating a bright, airy, and open environment.
The dining and living areas feature Italian marble, veneer finishes, live wood furniture, a small courtyard, quartz breakfast counter, glass partition, and centralized air conditioning for luxury and practicality.
This modern kitchen features a full acrylic, handless design, dark cabinetry with light cappuccino marble flooring, a red staircase, and elegant, sophisticated finishes.
Equipped with a Faber chimney and stove, stainless steel sink with extendable tap, RO provision, and Bosch OTG oven, combining style and effortless functionality.
Full-height units flank the refrigerator, complemented by a chef pantry, pull-out drawers, niches, and cutout panels for practical, organized, and visually appealing storage.
A planned cozy bedroom designed with warm veneers, elegant lighting, thoughtful storage, and a bright U-shaped window seating that enhances comfort and charm.
A wooden headboard featuring illuminated niches, a low platform bed, soft beige walls, and elegant ambient lighting for a warm, inviting atmosphere.
This bedroom featuring sleek white wardrobes, a wall-mounted TV unit with wooden accents, marble flooring, and warm recessed ceiling lighting.
Second Floor -This master bedroom features a refined teal theme, a super king-size bed, elegant paneling, and an 8-foot seating window that brings abundant natural light.
A stylish bedroom featuring teal textured walls, a sleek study corner, marble flooring, recessed ceiling lighting, and minimalist wooden doors with frosted glass panels.
The spacious dressing room features glossy white wardrobes, a convertible dressing mirror, ample storage, and refined veneer detailing for a luxurious, functional experience.
A glossy white wardrobes, frosted glass doors with wooden frames, marble flooring, and a stylish wooden ceiling panel
The highlight of the room is the L-shaped sitting window with fixed glass, flooding the space with natural light and providing a cozy corner for reading, relaxing, or enjoying outdoor views.
This kids’ bedroom begins with a entry corridor that adds privacy, ensuring the bed remains out of sight when entering. A compact, well-positioned toilet on the right enhances convenience and functionality.
The room features a practical layout, a warm American-walnut wardrobe, and a mirror-finish loft that enhances space and visual appeal.
An elegant bedroom featuring a tufted headboard, marble flooring, warm wooden paneling, soft lighting, and large glass doors with sheer curtains.
A elegant bedroom featuring a padded headboard, wooden paneling, warm lighting, floor-to-ceiling curtains, and a comfortable armchair beside a sleek wardrobe.
Even though it is not a large size, featuring a Denon home theater, dark-toned furnishings, layered ceiling, ambient lighting, natural veneer details, and centralized AC.
Third floor - it combines elegance and functionality, featuring full marble cladding, walnut veneer ceilings, custom wooden niches, curated décor, and a thoughtfully designed layout.
Gym combines luxury and functionality with marble flooring, veneer ceiling, modern fitness equipment, custom cabinet, TV, and audio systems.
A full-wall beveled copper mirror, sitting window, and attached special room add depth, light, richness, and versatility to the gym space.
Blending luxury with comfort, the terrace features sunbathing spaces, accent lighting, glass elements, practical access, and a serene, inviting outdoor ambiance for ultimate relaxation.
Ground floor - The stilt floor and landscaping create openness, featuring a dog kennel, generator provision, and slate stone pillars seamlessly integrated with the natural surroundings.
Offering safe play areas, ample parking, and hosting potential, the stilt floor includes two staircases for smooth circulation, blending practicality with elegance.
A sophisticated interior staircase with glossy marble steps, glass railings, soft wall lighting, and tasteful greenery enhancing the modern ambiance.
An elegant lift lobby featuring marble-clad walls, a sleek glass elevator, a modern staircase with metallic railings, and warm ambient lighting that enhances the space.
Terrace seamlessly blends elegance and functionality, with durable WPC finishes, sleek grey tiles, decorative grill panels, planter boxes, and vibrant natural greenery.
A luxurious multi-story residence with an elegant exterior, featuring stone cladding, glass balconies, wooden accents, and a stylishly designed entrance.
You need to have at-least 2400sq ft of land. Minimum proposed construction area of about 4,500 sq ft is required for us to take it as a project. Less than that will not be a viable project for us.
We need to be paid an advance 'Retainer' Payment before we start working on a project.
Please make sure that you come with a mindset to give us maximum freedom for designing, so that we can deliver the best result to you.
You have to trust us totally, only then we can perform to our best capacity. To get this trust, please go through in detail, all the completed project photographs we have displayed in our website.
Our Experience in High-end, Luxury homes and our design sense are unmatchable in the field, whether among established or among the start-up firms.
We don’t just show the computer generated 3D images as many new start-up firms do. You can see many such examples all over internet. They can only show you the computer generated imaginary views, and cannot show the completed real life photos as you see in our site.
It is very easy to show a computer generated image. But it takes years of experience to bring it to reality. We excel in bringing out the design in reality, so that The final result invariably looks much better than what we showed in 3-D views .
Our designs are not 'run of the mill'. Each and every house or interior is custom designed to need and the requirement of the people who will use it. We impart so much thought process, hours of brain storming sessions, deep research work in to each and everyone of them. And it takes typically about 1.5 to 2 years to complete the results that you see in our website. This kind of result requires everyday involvement from us during the entire period of construction.
We charge on square foot basis. Hence, whether you use Vitrified tiles or Italian marble for flooring, our fee will be the same. So, when we suggest a costly finish, you will not get the feeling that we are doing it to hike our fee. At the same time we charge as per the Council of Architecture norms.
We also provide complete turnkey solutions, whether in construction or in interiors. So your involvement in the process of construction will be almost nil. But if you prefer to involve more in the process, you are always welcome.
We have a dedicated and experienced team of staff members who work tirelessly to bring our imagination to reality. They will support your building construction team by Involving in endless meetings and discussions with the contractors, and their site supervisors. Also they take special care in clearing all their doubts and questions.
Once a project design is finalised, we will allot a working team to your project. The head of the team will coordinate with the daytoday requirements of the contractor and their construction team. You can always call or meet the head of our team and get your doubts and questions clarified. If you are not satisfied with his/her answer, you are welcome to escalate the issue to the chief architect who will be glad to solve the issue.
If a certain staff is not available for taking care of your need, we always have a substitute who will be knowledgeable in your project and fill the absence of the previous one instantly. So that when you make a crucial call with an important doubt, you will never get a reply that the concerned person is not available.
We coordinate completely for getting approvals from Corporation / CMDA / DTCP for your project.
We have complete knowledge of all available latest technology and finishes like tiles, veneers, paints etc. We always pass on the architects discount to our clients. Besides, all the vendors will give you special rates as have long term relationship with them. Most importantly once they go through us, they will never think about compromising the quality of work. They know that the moment they do it they are out of good books.
Our engineers will periodically check the quality of construction as per the strict norms we have. During important stages of concreting our engineers will visit the site and they will sign and certify that the implementation is as per our drawing. The concreting can proceed only after this. If you prefer, we arrange for the site visits by our team more frequently at minimum extra fee.
We just don’t provide the drawings and wash our hands out. We will be with you safe guarding your interest until the complete hand over of the project. So we coordinating each and every stage of the construction. Because of this aspect, you might find our fee to be little more than our competitors. But the enormous value addition you get compensates much more than the little extra that you pay to us.
People spend enormous amounts for constructing their homes. But if the design is given to improper people who might make blunders in the design. For example, if they place one column in a wrong location, you are stuck with that column forever in your life. This negates the small saving you had in choosing a firm offering lesser fee than us. Please think about this before you finalise your architect.