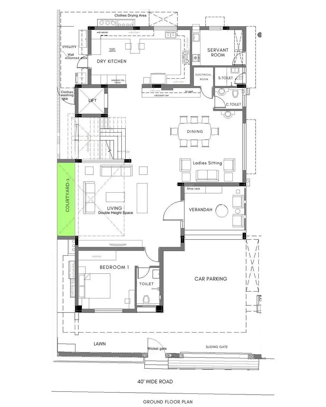
Location: Kotturpuram Chennai
Land Area: 3450 Sq Ft
Built Up Area: 6445 Sq Ft
Client Name: Mr.Masood
Architectural Design: Ansari Architects, Chennai.
The Golden House presents a residence of elegant, layered volumes, seamless indoor-outdoor integration, and refined architectural details. Key features include a sleek entrance gate, recessed balconies, and a cantilevered entry finished with polished stone. The open-plan living, dining, and sitting areas are accentuated by geometric wall features, glass partitions, and luxurious materials. Bedrooms combine warm textures with sophisticated cabinetry and cozy seating nooks. Functional zones like a home gym and theater prioritize both comfort and style. Outdoor terraces, adorned with decorative screens and natural elements, complete this thoughtfully designed contemporary home.
Visit...
The Golden House presents a residence of elegant, layered volumes, seamless indoor-outdoor integration, and refined architectural details. Key features include a sleek entrance gate, recessed balconies, and a cantilevered entry finished with polished stone. The open-plan living, dining, and sitting areas are accentuated by geometric wall features, glass partitions, and luxurious materials. Bedrooms combine warm textures with sophisticated cabinetry and cozy seating nooks. Functional zones like a home gym and theater prioritize both comfort and style. Outdoor terraces, adorned with decorative screens and natural elements, complete this thoughtfully designed contemporary home.
The entrance gate embodies modern elegance and complements the home's sleek facade.
Layered volumes with recessed balconies and screened facades add depth and texture. Cantilevered floors create covered parking and a striking entry, combining style and functionality.
House featuring a beige and white facade with a wooden gate and covered entrance, combining clean aesthetics with functional design.
The entrance blends warm stone finishes, a wooden ceiling, and recessed lighting for a refined, inviting feel. A decorative panel and seamless car porch enhance the modern, welcoming design.
Elevated entrance verandah with beige polished stone finishes, a dark wooden door featuring gold panels, recessed lighting.
The living area opens to an indoor courtyard, creating a fluid connection between interior and nature. Textured walls, layered ceilings, and natural light enhance the space's depth and serenity.
A floral glass-panelled wooden door and light tones define the space, seamlessly connecting the living and dining areas in a clean, open layout.
Double-height space with decorative glazing and an indoor courtyard introduces light and spatial richness.
Chandelier suspended from a recessed ceiling, framed by glass railings and floral wall panels, accentuates vertical elegance.
Open-plan design connects dining and sitting areas with geometric wall features, recessed ceilings, and glass partitions, creating a spacious and elegant environment.
Dining area showcases a marble surface with upholstered seating, ornate chandeliers, built-in cabinetry, and patterned curtains, all complementing elegant tiled flooring.
Showcases a luxurious open-plan space seamlessly integrating dining, lift/stairwell, and seating areas.
Staircase with black marble steps, under-step lighting, frosted glass panels, a water feature below, and a sleek marble elevator door.
The kitchen blends seamless cabinetry, a patterned backsplash, and layered lighting with a sleek breakfast counter and window for a refined, functional layout.
The wall features a bold geometric backsplash as a focal point, complemented by glossy cabinetry that enhances light and openness in the kitchen.
The bedroom features a tufted headboard, golden-framed mirror, wooden wardrobe, and soft window drapes, creating a warm and refined ambiance.
The bedroom’s entrance door blends seamlessly with the wall, preserving a streamlined and unified design aesthetic.
Interior hallway featuring a staircase with glass railings and black steps, beige polished flooring, and wooden door frames, seamlessly connecting the lift and family entrance to the first floor.
This family sitting area serves as a comfortable lounge within the residence, thoughtfully designed to balance functionality with a warm, inviting atmosphere.
Upper-level family sitting area with double-height void, glass railings, decorative screens, and layered ceilings.
Prayer room featuring a decorative arched wall niche with backlighting and calligraphy, alongside a dark wooden door with patterned frosted glass and elegant wall accents.
Spacious modern bedroom with marble flooring, a tufted bed, decorative wall panels, cushioned seating, and a large window seat with patterned curtains.
This bedroom highlights a built-in window seat, layered headboard, and warm materials, creating distinct zones for comfort and storage.
The back wall showcases a glossy built-in wardrobe with gold accents, complemented by large windows and a cozy seating nook for a luxurious, functional bedroom.
Bathroom features a glass-enclosed shower with an illuminated ceiling panel, frosted window, black marble walls, and a wall-mounted toilet on tiled flooring.
Balcony showcases wood-finished floors and ceiling, highlighted by a large decorative leaf-patterned wall panel, blending natural textures with elegant design.
The bed wall combines textured panels and vertical wood accents for a luxurious focal point, complemented by built-in lighting and a cozy window seat, creating a warm and inviting modern bedroom.
Bedroom with padded wall panels, a large bed, white and gold wardrobe, and floating bedside tables.
Warm wood accents and soft neutrals contrast with crisp whites, creating a balanced and visually refined bedroom design.
Elegant bathroom featuring black marble surfaces, a sleek glass shower enclosure, and a backlit mirror above a modern vanity, enhanced by a patterned ceiling light effect.
Bedroom showcases a tall upholstered headboard with gold accents, framed by mirrored panels and floating side units. Warm finishes and custom cabinetry create a refined, cohesive layout.
The design contrasts cool upholstered elements with warm wood flooring and mirrored accents, while textured drapes soften the space and frame the large window.
The room integrates sleeping, working, and lounging zones within a cohesive layout, enhanced by thoughtful spatial planning and refined architectural detailing.
Balcony with ivy-clad wall, wooden ceiling, and seamless connection to the warm, well-lit interior through glass sliders.
Second-floor home gym designed with mirrored walls, durable flooring, textured finishes, and layered lighting—balancing functionality, openness, and modern spatial flow.
Home theater with tiered seating, acoustic panels, and sleek cabinetry, designed for immersive sound and comfortable viewing.
The far wall features vertical slatted paneling, adding texture and acoustic enhancement as a subtle backdrop for the screen.
The terrace showcases tiled flooring, glass railings, textured walls, and decorative windows, creating a seamless indoor-outdoor connection.
Outdoor terrace features grey wooden flooring, stone pillars, frosted glass railing, and a decorative leaf-patterned canopy with integrated warm LED lighting.
A large geometric decorative screen on the right wall provides privacy, solar shading, and dynamic light-shadow effects.
You need to have at-least 2400sq ft of land. Minimum proposed construction area of about 4,500 sq ft is required for us to take it as a project. Less than that will not be a viable project for us.
We need to be paid an advance 'Retainer' Payment before we start working on a project.
Please make sure that you come with a mindset to give us maximum freedom for designing, so that we can deliver the best result to you.
You have to trust us totally, only then we can perform to our best capacity. To get this trust, please go through in detail, all the completed project photographs we have displayed in our website.
Our Experience in High-end, Luxury homes and our design sense are unmatchable in the field, whether among established or among the start-up firms.
We don’t just show the computer generated 3D images as many new start-up firms do. You can see many such examples all over internet. They can only show you the computer generated imaginary views, and cannot show the completed real life photos as you see in our site.
It is very easy to show a computer generated image. But it takes years of experience to bring it to reality. We excel in bringing out the design in reality, so that The final result invariably looks much better than what we showed in 3-D views .
Our designs are not 'run of the mill'. Each and every house or interior is custom designed to need and the requirement of the people who will use it. We impart so much thought process, hours of brain storming sessions, deep research work in to each and everyone of them. And it takes typically about 1.5 to 2 years to complete the results that you see in our website. This kind of result requires everyday involvement from us during the entire period of construction.
We charge on square foot basis. Hence, whether you use Vitrified tiles or Italian marble for flooring, our fee will be the same. So, when we suggest a costly finish, you will not get the feeling that we are doing it to hike our fee. At the same time we charge as per the Council of Architecture norms.
We also provide complete turnkey solutions, whether in construction or in interiors. So your involvement in the process of construction will be almost nil. But if you prefer to involve more in the process, you are always welcome.
We have a dedicated and experienced team of staff members who work tirelessly to bring our imagination to reality. They will support your building construction team by Involving in endless meetings and discussions with the contractors, and their site supervisors. Also they take special care in clearing all their doubts and questions.
Once a project design is finalised, we will allot a working team to your project. The head of the team will coordinate with the daytoday requirements of the contractor and their construction team. You can always call or meet the head of our team and get your doubts and questions clarified. If you are not satisfied with his/her answer, you are welcome to escalate the issue to the chief architect who will be glad to solve the issue.
If a certain staff is not available for taking care of your need, we always have a substitute who will be knowledgeable in your project and fill the absence of the previous one instantly. So that when you make a crucial call with an important doubt, you will never get a reply that the concerned person is not available.
We coordinate completely for getting approvals from Corporation / CMDA / DTCP for your project.
We have complete knowledge of all available latest technology and finishes like tiles, veneers, paints etc. We always pass on the architects discount to our clients. Besides, all the vendors will give you special rates as have long term relationship with them. Most importantly once they go through us, they will never think about compromising the quality of work. They know that the moment they do it they are out of good books.
Our engineers will periodically check the quality of construction as per the strict norms we have. During important stages of concreting our engineers will visit the site and they will sign and certify that the implementation is as per our drawing. The concreting can proceed only after this. If you prefer, we arrange for the site visits by our team more frequently at minimum extra fee.
We just don’t provide the drawings and wash our hands out. We will be with you safe guarding your interest until the complete hand over of the project. So we coordinating each and every stage of the construction. Because of this aspect, you might find our fee to be little more than our competitors. But the enormous value addition you get compensates much more than the little extra that you pay to us.
People spend enormous amounts for constructing their homes. But if the design is given to improper people who might make blunders in the design. For example, if they place one column in a wrong location, you are stuck with that column forever in your life. This negates the small saving you had in choosing a firm offering lesser fee than us. Please think about this before you finalise your architect.