Location: Korattur
Land Area: 2,280 Sq. Ft
Built Up Area: 5,838 Sq. Ft
Architectural Design: Ansari Architects
Interior Design: Ansari Architects
Premium Luxury Villa – The house showcases a modern rectilinear form with interlocking volumes, cantilevered projections, and dynamic terraces. Double-height balconies and large glazed openings create depth, rhythm, and connectivity, while a mix of textured stone, wooden soffits, and plaster finishes enhances architectural sophistication and daylight penetration.
The covered car parking area is thoughtfully planned to accommodate multiple vehicles while ensuring smooth circulation and pedestrian access. Stone-clad columns, wooden ceiling panels, recessed lighting, and neutral tones create a welcoming and elegant arrival experience.
The lobby acts as a grand transitional space featuring a central curved...
Premium Luxury Villa – The house showcases a modern rectilinear form with interlocking volumes, cantilevered projections, and dynamic terraces. Double-height balconies and large glazed openings create depth, rhythm, and connectivity, while a mix of textured stone, wooden soffits, and plaster finishes enhances architectural sophistication and daylight penetration.
The covered car parking area is thoughtfully planned to accommodate multiple vehicles while ensuring smooth circulation and pedestrian access. Stone-clad columns, wooden ceiling panels, recessed lighting, and neutral tones create a welcoming and elegant arrival experience.
The lobby acts as a grand transitional space, featuring a central curved seating arrangement, polished marble flooring, and warm wooden accents. Symmetry, integrated storage, and layered lighting enhance functionality while creating a visually appealing and harmonious entry experience.
The wooden staircase with a glass railing flows gracefully over polished marble flooring, complemented by a pebble garden underneath. Layered lighting, stone-clad walls, and dark wooden ceiling panels create visual depth, warmth, and an engaging focal point within the home.
The office combines a central desk layout with comfortable visitor seating, balanced natural light, and open circulation. Warm wooden furniture, polished marble flooring, and soft-toned walls create a focused, sophisticated, and highly functional workspace.
The double-height living space features polished marble flooring, a feature TV wall, and warm wooden accents that harmonize materials. A dramatic book-matched marble feature wall, framed with wooden panels and complemented by glass balustrades and metal accents, emphasizes verticality and elegance. The open-plan layout, balcony connectivity, subtle puja partition, expansive glass doors, and recessed lighting enhance natural light, fluid spatial flow, and create a calm, luxurious, and visually striking environment.
The compact pooja room exudes serenity, with polished marble surfaces, wooden shelves, and matte cabinetry. Recessed lighting, floating shelving, and subtle brass accents create a sacred, organized, and harmonious environment ideal for reflection.
Centrally located between the kitchen and living zones, the dining space promotes seamless interaction. Polished marble flooring, warm wooden accents, and a carefully chosen dining set enhance elegance, circulation, and modern sophistication.
The kitchen features a functional parallel U-shaped layout for smooth workflow and direct utility access. High-gloss cabinetry, black granite countertops, textured glass shutters, and integrated lighting create a clean, efficient, and aesthetically refined cooking space.
The master bedroom is designed with a rectilinear layout and a textured feature wall behind the bed. Teak furniture, polished marble flooring, large sliding doors, soft curtains, and layered ceiling lighting provide elegance, comfort, and fluidity of space.
The daughter’s bedroom combines a central bed against a mauve feature wall, polished flooring, and warm wooden accents. Integrated nightstands, layered lighting, and neutral window treatments create a bright, balanced, and functional environment.
A double-height open-plan space with polished flooring, wooden accents, and glass railing creates a bright, versatile area suitable for social gatherings and entertainment. Its flexible layout ensures functionality while maintaining architectural sophistication.
The balcony extends from the bedroom with wood-look flooring, a glass railing, and a shaded roof projection. It provides seamless indoor-outdoor connectivity and unobstructed views, enhancing comfort and architectural rhythm.
The bedroom features a rectilinear layout with balcony-access sliding doors, a central bed, and an integrated study corner. Polished flooring, teak furniture, wooden ceiling panels, and soft curtains create a bright, functional, and elegant retreat.
The guest bedroom maximizes space with a handle-less wardrobe, floating TV unit, and minimalist décor. Soft tones, layered lighting, and natural materials enhance visual comfort, balance, and modern elegance.
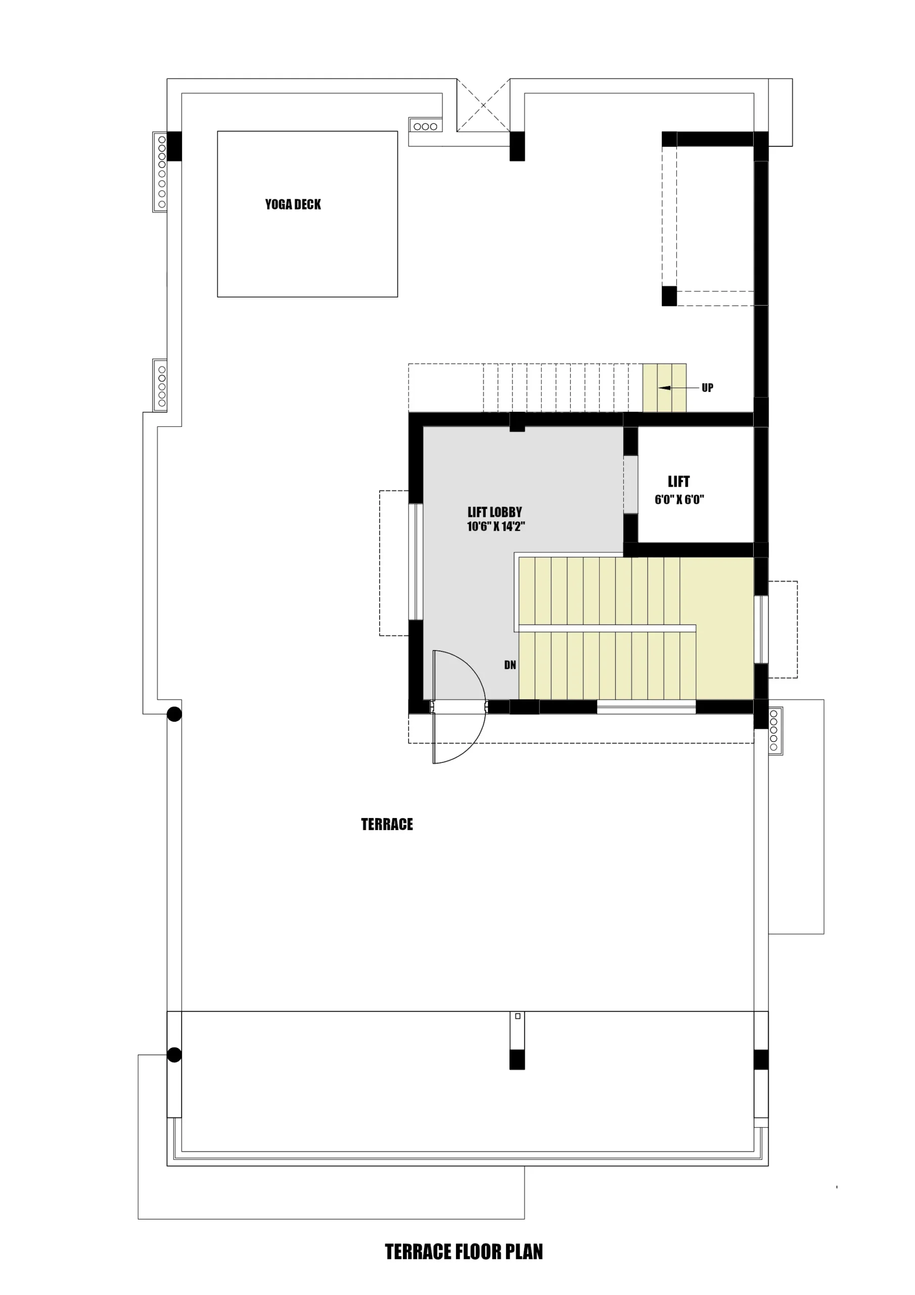
The lift lobby is a bright transitional space connecting the lift and staircase, featuring a glass-railed stair void for openness. Cream flooring and wooden accents reinforce a clean, contemporary, and architecturally cohesive character.
The terrace is an open recreational zone with a semi-shaded pergola that defines architectural rhythm. Light-toned flooring, neutral walls, and a sleek metal pergola create a modern, functional rooftop space for relaxation or gatherings.
The house showcases a modern rectilinear form with double-height balconies and a terrace designed as a pergola, blending open-air leisure with architectural rhythm. Textured stone, plaster, and wood finishes, along with large glazed openings and integrated lighting, enhance daylight, depth, and visual connectivity.
The Car Parking Design ( 31'1" x 26'6" sq.ft ) is a covered and organized space accommodating multiple vehicles while ensuring smooth circulation and pedestrian access. Stone-clad columns, wooden ceiling panels, recessed lighting, and neutral tones create a functional, elegant, and welcoming entry experience.
The Lobby area ( 24'0" x 15'0" sq.ft ) is a welcoming transitional space featuring a central curved seating arrangement, polished beige marble flooring, and warm wooden accents. Symmetry, integrated storage, and layered lighting create a calm, functional, and visually appealing entry environment.
Staircase & Pebble Garden features a wooden staircase with glass railing over polished marble flooring, complemented by a pebble garden underneath that adds texture and natural charm. Layered lighting, stone-clad walls, and dark wood ceiling panels enhance depth, warmth, and visual interest.
Office Design ( 12'0" x 14'0" sq.ft ) combines a central desk layout with visitor seating, balanced natural light, and open circulation. Warm wooden furniture, polished marble flooring, and subtle beige walls create a functional, sophisticated, and focused workspace.
The first-floor living area ( 17'0" x 18'0" sq.ft ) features a double-height volume with polished marble flooring, a feature TV wall, and wooden accents for material harmony. Open-plan layout, balcony connection, puja room partition, large glass doors, and recessed lighting enhance vertical openness, natural light, and seamless spatial flow.
Double-Height Space showcases a striking feature wall of book-matched marble, framed with warm wooden panels and complemented by glass balustrades and metal accents. The design emphasizes vertical openness, natural light, and a calm, sophisticated atmosphere through careful material selection and proportion.
Pooja Room ( 8'0" x 5'0" sq.ft ) is a compact, serene niche designed for spiritual practice, featuring polished beige marble, natural wood shelves, and matte cream cabinetry. Recessed lighting, floating shelves, and brass accents create a calm, organized, and sacred atmosphere while maximizing functionality and visual harmony.
Dining Area ( 24'0" x 17'0" sq.ft ) is a central, open-plan space connecting the kitchen and living zones. Polished marble flooring, warm wooden accents, and a round dining set create a balanced, elegant environment with smooth circulation and refined modern detailing.
Kitchen ( 12'0" x 13'0" sq.ft ) is planned with a parallel U-shaped layout to ensure an efficient cooking workflow and seamless access to the utility area. Gloss beige cabinetry, black granite countertops, fluted glass shutters, and integrated lighting create a clean, functional space with refined modern detailing.
The entryway flows seamlessly into the dining and living areas, enhancing openness and circulation.
The master bedroom ( 12'0" x 17'0" sq.ft ) features a rectilinear layout with a central bed against a textured feature wall, complemented by teak wood furnishings and cream marble flooring. Large sliding doors, soft beige curtains, and recessed ceiling lighting enhance natural light, spatial depth, and functional flow.
The bedroom features cream vitrified flooring and sleek grey wardrobes. Floating TV units, mirror panels, and layered ceiling lighting create a bright, airy, and minimalist space with functional elegance.
Daughter’s Bedroom ( 12'0" x 14'0" sq.ft ) features a centrally positioned bed against a textured mauve feature wall, polished cream marble flooring, and warm wooden accents. Layered ceiling lighting, integrated nightstands, and neutral window blinds create a bright, balanced, and functional space, designed for comfort, symmetry, and modern aesthetics.
The room includes a built-in wardrobe with sleek finishes and polished flooring. Wooden accents, layered ceiling lighting, and minimal décor create a bright, functional, and balanced modern space.
The second-floor party area ( 24'0" x 32'6" sq.ft ) features a double-height layout with polished marble flooring, wooden accents, and a glass railing, creating an open, bright, and flexible space for gatherings.
The balcony ( 10'0" x 6'0" sq.ft ) extends from the bedroom with wood-look flooring, glass railing, and a shaded roof, offering seamless indoor-outdoor connectivity and unobstructed views.
Bedroom ( 12'0" x 17'0" sq.ft ) a rectilinear layout with a central bed, balcony-access sliding door and window, and integrated study corner. Polished marble flooring, teak wood furniture, wooden ceiling panels, and soft beige curtains create a bright, functional, and elegant space.
High-gloss wardrobe shutters create a bright, warm, and expansive bedroom. Layered ceiling lighting, handle-less cabinetry, and integrated wooden accents enhance functionality, visual depth, and modern minimalist elegance.
Guest Bedroom ( 12'0" x 13'0" sq.ft ) a rectilinear layout with a central bed, handle-less wardrobe, and floating TV unit maximizes space and balance. Layered lighting, soft tones, and natural materials enhance comfort, proportion, and modern minimalism.
The right-side sitting window creates a cozy reading nook, while the frosted glass sliding door leads to a private dressing area.
Lift Lobby ( 10'6" x 14'2" sq.ft ) is designed as a bright transitional space connecting the lift and staircase, with a glass-railed stair void enhancing openness and light flow. Cream marble flooring and warm wooden accents reinforce a clean, contemporary architectural character.
The terrace is planned as an open recreational space with a rectilinear layout, where a pergola defines a semi-shaded zone and adds architectural rhythm. Light-toned flooring, neutral walls, and a black metal pergola create a clean, modern rooftop environment that balances functionality, sustainability, and visual clarity.
The house features interlocking volumes with cantilevered projections, combining wood, plaster, and glass finishes for a modern, dynamic facade.
You need to have at-least 2400sq ft of land. Minimum proposed construction area of about 4,500 sq ft is required for us to take it as a project. Less than that will not be a viable project for us.
We need to be paid an advance 'Retainer' Payment before we start working on a project.
Please make sure that you come with a mindset to give us maximum freedom for designing, so that we can deliver the best result to you.
You have to trust us totally, only then we can perform to our best capacity. To get this trust, please go through in detail, all the completed project photographs we have displayed in our website.
Our Experience in High-end, Luxury homes and our design sense are unmatchable in the field, whether among established or among the start-up firms.
We don’t just show the computer generated 3D images as many new start-up firms do. You can see many such examples all over internet. They can only show you the computer generated imaginary views, and cannot show the completed real life photos as you see in our site.
It is very easy to show a computer generated image. But it takes years of experience to bring it to reality. We excel in bringing out the design in reality, so that The final result invariably looks much better than what we showed in 3-D views .
Our designs are not 'run of the mill'. Each and every house or interior is custom designed to need and the requirement of the people who will use it. We impart so much thought process, hours of brain storming sessions, deep research work in to each and everyone of them. And it takes typically about 1.5 to 2 years to complete the results that you see in our website. This kind of result requires everyday involvement from us during the entire period of construction.
We charge on square foot basis. Hence, whether you use Vitrified tiles or Italian marble for flooring, our fee will be the same. So, when we suggest a costly finish, you will not get the feeling that we are doing it to hike our fee. At the same time we charge as per the Council of Architecture norms.
We also provide complete turnkey solutions, whether in construction or in interiors. So your involvement in the process of construction will be almost nil. But if you prefer to involve more in the process, you are always welcome.
We have a dedicated and experienced team of staff members who work tirelessly to bring our imagination to reality. They will support your building construction team by Involving in endless meetings and discussions with the contractors, and their site supervisors. Also they take special care in clearing all their doubts and questions.
Once a project design is finalised, we will allot a working team to your project. The head of the team will coordinate with the daytoday requirements of the contractor and their construction team. You can always call or meet the head of our team and get your doubts and questions clarified. If you are not satisfied with his/her answer, you are welcome to escalate the issue to the chief architect who will be glad to solve the issue.
If a certain staff is not available for taking care of your need, we always have a substitute who will be knowledgeable in your project and fill the absence of the previous one instantly. So that when you make a crucial call with an important doubt, you will never get a reply that the concerned person is not available.
We coordinate completely for getting approvals from Corporation / CMDA / DTCP for your project.
We have complete knowledge of all available latest technology and finishes like tiles, veneers, paints etc. We always pass on the architects discount to our clients. Besides, all the vendors will give you special rates as have long term relationship with them. Most importantly once they go through us, they will never think about compromising the quality of work. They know that the moment they do it they are out of good books.
Our engineers will periodically check the quality of construction as per the strict norms we have. During important stages of concreting our engineers will visit the site and they will sign and certify that the implementation is as per our drawing. The concreting can proceed only after this. If you prefer, we arrange for the site visits by our team more frequently at minimum extra fee.
We just don’t provide the drawings and wash our hands out. We will be with you safe guarding your interest until the complete hand over of the project. So we coordinating each and every stage of the construction. Because of this aspect, you might find our fee to be little more than our competitors. But the enormous value addition you get compensates much more than the little extra that you pay to us.
People spend enormous amounts for constructing their homes. But if the design is given to improper people who might make blunders in the design. For example, if they place one column in a wrong location, you are stuck with that column forever in your life. This negates the small saving you had in choosing a firm offering lesser fee than us. Please think about this before you finalise your architect.