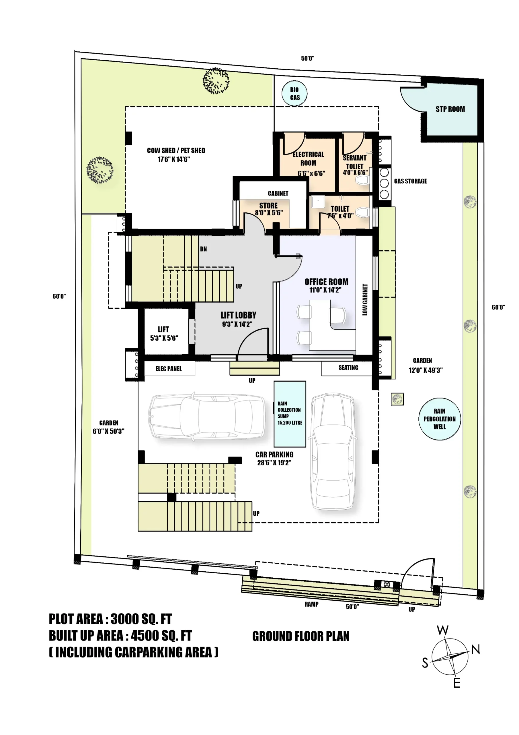
Location: Kottivakkam, Chennai
Land Area: 3,000 Sq. Ft
Built Up Area: 4,500 Sq. Ft
Architectural Design: Ansari Architects
Interior Design: Ansari Architects
A melange of traditions The entrance makes an immediate impression with a striking gate that combines the warmth of natural wooden planks with the sophistication of light textured boundary walls Subtle integrated lighting highlights the textures creating a welcoming ambiance during the day and a dramatic effect at night The main entrance door is solid and sturdy adorned with decorative panels while a side glass panel etched with frosted artistic patterns introduces natural light and elegance Upon entering the lobby unfolds as a transitional yet engaging space An exposed...
A melange of traditions – The entrance makes an immediate impression with a striking gate that combines the warmth of natural wooden planks with the sophistication of light textured boundary walls. Subtle integrated lighting highlights the textures, creating a welcoming ambiance during the day and a dramatic effect at night. The main entrance door is solid and sturdy, adorned with decorative panels, while a side glass panel etched with frosted artistic patterns introduces natural light and elegance. Upon entering, the lobby unfolds as a transitional yet engaging space. An exposed brick wall introduces warmth and texture, while a mirrored wall with a decorative console table becomes a focal point for art and accessories. This area connects directly to the staircase and upper floor, creating both a physical and visual link between levels.
Functionality and aesthetics extend outdoors with a covered car parking area seamlessly integrated with the entrance and lobby. This ensures practicality while keeping the exterior visually connected to the architecture.
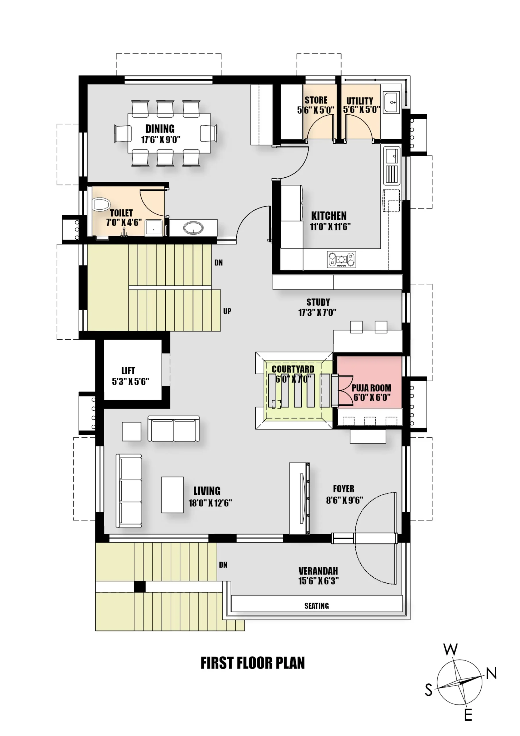
The verandah is designed as a long, narrow outdoor space adjacent to the main building, providing a tranquil transition between the interiors and the external environment. Accessible through a glass door fitted with a protective metal grill, it ensures both security and visual transparency. Decorative wooden railings enhance safety while adding a refined design element, allowing free airflow and maintaining openness. By combining functional details with aesthetic accents, the verandah becomes more than just a passage — it serves as a comfortable semi-outdoor zone for relaxation, casual conversations, or simply enjoying fresh air while remaining sheltered.
The living areas are designed to emphasize openness, comfort, and modern elegance. On the first floor, the living room features two expansive, floor-to-ceiling corner windows arranged in an L-shape behind the seating area, flooding the space with natural light and offering framed views of the outdoors. The layout is minimalist yet highly functional, with plush sofas arranged to encourage gatherings and conversations. Adding a touch of sophistication is a built-in elevator, framed in glossy black stone, offering both luxury and accessibility, seamlessly blending utility with design.
The home incorporates thoughtfully designed work and study spaces, tailored to modern needs. The study room, long and rectangular in form, maximizes space efficiency through built-in cabinetry along one wall, leaving the opposite side free for circulation. A dedicated workspace at the far end creates a quiet corner for productivity. The office, enclosed by a full-height glass partition with warm wooden framing, balances transparency with acoustic privacy. Inside, a spacious wooden desk designed for dual workstations supports collaboration while maintaining an atmosphere of modern professionalism and elegance.
The dining area is the heart of shared living. A sleek marble-topped table for eight occupies the center, surrounded by ample circulation space for ease of movement. Floor-to-ceiling windows, softened by sheer curtains, invite daylight while ensuring privacy. A stylish console with a vessel sink and round mirror elevates the space, merging functionality with luxury. The overall atmosphere is one of understated sophistication, making the room ideal for both family meals and formal entertaining.
The kitchen design emphasizes durability and style. Neutral-toned cabinetry with a sleek, glossy finish gives the space a contemporary aesthetic, while a mosaic backsplash of earthy tiles introduces texture, warmth, and visual rhythm. Light-toned countertops made from durable solid surfaces ensure ease of maintenance and long-term performance. The balance of surfaces, textures, and lighting transforms the kitchen into a functional workspace that is also visually engaging.
Vertical circulation is anchored by an indoor staircase with dark stone steps, paired with a clear glass railing that emphasizes openness and transparency. Beside it stands a sleek elevator with metallic doors, framed dramatically by dark stone cladding. Overhead, bright ceiling lighting enhances the contrast of materials, creating a striking centerpiece for the home’s interior architecture while ensuring ease of access to the second floor.
The bedrooms are designed as private sanctuaries with minimalist layouts that emphasize relaxation. Centrally placed beds with soft upholstered headboards anchor the rooms, often paired with built-in window seats that double as cozy nooks for reading or relaxation. Feature walls, highlighted with marble panels framed in warm wood, add both luxury and texture, making them visual focal points. Wardrobes are seamlessly integrated with lower drawers and dressing areas, maximizing storage while keeping the design streamlined and cohesive. Natural light filters in through large windows dressed in sheer curtains, enhancing comfort while maintaining privacy. Layered lighting—through recessed fixtures, accent lighting, and daylight—ensures adaptability for different moods and activities.
Children’s spaces are planned with efficiency, comfort, and playfulness in mind. Compact layouts feature centrally placed beds surrounded by custom cabinetry and overhead storage that maximize vertical space. Open shelves flank the bed, providing easy access to books, toys, and personal items. Bright finishes with two-tone cabinetry, combined with warm wood accents, ensure a cheerful yet refined environment. Large windows with sheer curtains allow generous daylight, while air conditioning units maintain comfort across seasons. These rooms strike the perfect balance between functionality, storage, and a lively atmosphere suitable for growing children.
Bathrooms throughout the home highlight a mix of elegance and practicality. One bathroom features white marble vessel sinks atop beige counters, paired with illuminated mirrors and frosted glass shower enclosures with sleek metal accents. Another showcases dark marble walls for a bold statement, complemented by a floating gray vanity, a white vessel sink, and a floating toilet, with a large illuminated mirror visually expanding the space. Contrasting materials, modern lighting, and thoughtful layouts ensure every bathroom feels luxurious yet easy to use.
linkedin profile : www.linkedin.com/in/ansari-architects
The entrance gate combines warm wooden planks with light textured boundary walls, creating a welcoming yet secure look. Subtle integrated lighting enhances textures and highlights the design, making the entryway elegant by day and striking by night.
Use warm lighting to highlight textures and create a welcoming atmosphere. Wall-mounted lights are evenly spaced along the boundary, providing both security and an inviting ambiance.
The main entrance features a solid wooden door with decorative panels and a side glass panel with artistic frosted patterns, adding elegance and natural light.
The area seamlessly integrates a covered car parking space with a welcoming lobby leading to the main entrance.
The lobby serves as a welcoming transition, featuring an exposed brick wall for warmth and character, a mirrored wall with a decorative console as a focal point, and a clear visual connection to the staircase leading to the upper floor.
The office features a full-height glass partition with wooden framing, offering transparency and acoustic privacy. A spacious wooden desk with dual workstations ensures functionality and modern elegance.
The room features large horizontal windows with neutral-toned blinds, offering adjustable natural light and privacy, complemented by a clutter-free, efficient layout for seamless circulation.
The verandah is a long, narrow outdoor space adjacent to the main building, accessible through a glass door with a metal grill for security and aesthetics.
Use decorative wooden railings to provide safety while enhancing the visual appeal and allowing airflow.
The first floor living room is designed with two large, floor-to-ceiling windows positioned at the corner, creating an L-shaped expanse of glass behind the seating area.
A spacious living room with a minimalist layout, featuring plush sofas for gatherings and a sleek built-in elevator with a glossy black surround that adds both luxury and accessibility.
A centrally located courtyard, open to the sky, serves as a spiritual and visual focal point, filling the home with natural light and a serene, uplifting atmosphere.
The study room is long and rectangular, efficiently utilizing the available space with built-in cabinetry along one wall and a dedicated workspace at the far end.
The dining room showcases a sleek marble-topped table for eight, complemented by floor-to-ceiling windows with sheer curtains for natural light. A stylish console with a vessel sink and mirror adds luxury and functionality, making the space ideal for dining and entertaining.
A dining space designed for both form and function, featuring a white marble table with eight upholstered chairs, integrated wooden cabinetry, and thoughtfully placed lighting and climate controls, all set against a clean, light-toned backdrop to enhance openness and elegance.
The cabinetry features a sleek, glossy finish in neutral tones, contributing to a clean and modern aesthetic. The backsplash is a standout feature, using a mosaic of brown tiles that adds warmth, texture, and visual interest to the space.
Countertops are finished in a light, solid surface material, providing durability and easy maintenance.
An indoor staircase with dark stone steps and a glass railing seamlessly connects to the second floor, positioned beside a sleek elevator with metallic doors framed by dark stone walls, all highlighted under bright ceiling lighting for a striking, contemporary look.
The bedroom is spacious, with a modern, minimalist design. The bed is centrally placed against a feature wall with a soft, upholstered headboard and integrated side tables.
The headboard wall is a focal point, featuring marble panels framed with warm wood, adding both luxury and texture.
Layer lighting with recessed fixtures and natural light for a comfortable, adaptable environment.
The room features two prominent window elements: a large main window with sheer curtains and a cozy sitting window nook to the side, both allowing abundant natural light.
The LED-lit mirror offers excellent task lighting for dressing and grooming, eliminating shadows and enhancing visibility. A wall-mounted fan ensures ventilation and comfort, especially in a compact space.
A bathroom with a white marble vessel sink, illuminated mirror, and frosted glass shower with sleek metal accents, blending elegance and functionality.
A bathroom with dark marble walls, a floating gray vanity with white vessel sink, a floating white toilet, and a large illuminated mirror that reflects the space, creating a sleek and modern aesthetic.
A thoughtfully designed kid’s bedroom featuring a large bed with a padded headboard, accented pillows, and built-in cabinetry with integrated shelving for books and decor. A window with sheer curtains and an air conditioning unit ensures comfort and natural light.
A compact kid’s room with a centrally placed bed, custom cabinetry, and open shelves for easy access to books and toys.
The window is generously sized, allowing for plenty of natural light, and is dressed with full-length beige curtains for privacy and softness.
A bright, airy child’s room with two-tone cabinetry, warm wood accents, ample natural light, and comfortable climate control.
A stylish bathroom featuring a wall-mounted toilet, sleek sink, illuminated mirror, and contrasting wall and floor finishes, combining elegance and functionality.
The bedroom features a large bed with a padded headboard, positioned against a feature wall.
A built-in window seat runs along the length of the window, creating a cozy nook for reading or relaxation and maximizing the use of natural light.
Combine wardrobes with lower drawers and adjacent dressing areas to maximize storage and functionality in compact bedrooms. Use built-in furniture to maintain a streamlined, cohesive look.
The bedroom features a well-organized layout with a built-in wardrobe, a dressing area with a full-length mirror, and a window seat. The wardrobe is seamlessly integrated with lower drawers, maximizing storage without overwhelming the space.
A minimalist bedroom with a centrally placed bed and a built-in window seat, creating a bright, cozy nook for relaxation and reading.
A contemporary bedroom with a blue upholstered bed facing the window, complemented by a dark wood window seat that adds contrast and a cozy spot to enjoy natural light and views.
Wardrobes in glossy navy and beige with a chevron pattern add contemporary flair, balanced by warm wooden doors and neutral flooring for a harmonious, inviting bedroom.
You need to have at-least 2400sq ft of land. Minimum proposed construction area of about 4,500 sq ft is required for us to take it as a project. Less than that will not be a viable project for us.
We need to be paid an advance 'Retainer' Payment before we start working on a project.
Please make sure that you come with a mindset to give us maximum freedom for designing, so that we can deliver the best result to you.
You have to trust us totally, only then we can perform to our best capacity. To get this trust, please go through in detail, all the completed project photographs we have displayed in our website.
Our Experience in High-end, Luxury homes and our design sense are unmatchable in the field, whether among established or among the start-up firms.
We don’t just show the computer generated 3D images as many new start-up firms do. You can see many such examples all over internet. They can only show you the computer generated imaginary views, and cannot show the completed real life photos as you see in our site.
It is very easy to show a computer generated image. But it takes years of experience to bring it to reality. We excel in bringing out the design in reality, so that The final result invariably looks much better than what we showed in 3-D views .
Our designs are not 'run of the mill'. Each and every house or interior is custom designed to need and the requirement of the people who will use it. We impart so much thought process, hours of brain storming sessions, deep research work in to each and everyone of them. And it takes typically about 1.5 to 2 years to complete the results that you see in our website. This kind of result requires everyday involvement from us during the entire period of construction.
We charge on square foot basis. Hence, whether you use Vitrified tiles or Italian marble for flooring, our fee will be the same. So, when we suggest a costly finish, you will not get the feeling that we are doing it to hike our fee. At the same time we charge as per the Council of Architecture norms.
We also provide complete turnkey solutions, whether in construction or in interiors. So your involvement in the process of construction will be almost nil. But if you prefer to involve more in the process, you are always welcome.
We have a dedicated and experienced team of staff members who work tirelessly to bring our imagination to reality. They will support your building construction team by Involving in endless meetings and discussions with the contractors, and their site supervisors. Also they take special care in clearing all their doubts and questions.
Once a project design is finalised, we will allot a working team to your project. The head of the team will coordinate with the daytoday requirements of the contractor and their construction team. You can always call or meet the head of our team and get your doubts and questions clarified. If you are not satisfied with his/her answer, you are welcome to escalate the issue to the chief architect who will be glad to solve the issue.
If a certain staff is not available for taking care of your need, we always have a substitute who will be knowledgeable in your project and fill the absence of the previous one instantly. So that when you make a crucial call with an important doubt, you will never get a reply that the concerned person is not available.
We coordinate completely for getting approvals from Corporation / CMDA / DTCP for your project.
We have complete knowledge of all available latest technology and finishes like tiles, veneers, paints etc. We always pass on the architects discount to our clients. Besides, all the vendors will give you special rates as have long term relationship with them. Most importantly once they go through us, they will never think about compromising the quality of work. They know that the moment they do it they are out of good books.
Our engineers will periodically check the quality of construction as per the strict norms we have. During important stages of concreting our engineers will visit the site and they will sign and certify that the implementation is as per our drawing. The concreting can proceed only after this. If you prefer, we arrange for the site visits by our team more frequently at minimum extra fee.
We just don’t provide the drawings and wash our hands out. We will be with you safe guarding your interest until the complete hand over of the project. So we coordinating each and every stage of the construction. Because of this aspect, you might find our fee to be little more than our competitors. But the enormous value addition you get compensates much more than the little extra that you pay to us.
People spend enormous amounts for constructing their homes. But if the design is given to improper people who might make blunders in the design. For example, if they place one column in a wrong location, you are stuck with that column forever in your life. This negates the small saving you had in choosing a firm offering lesser fee than us. Please think about this before you finalise your architect.