Location: Madhanandapuram
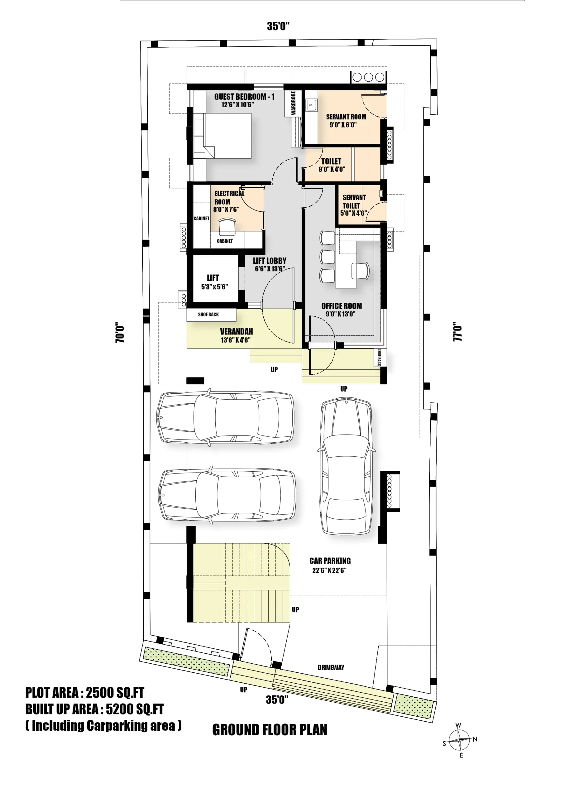
Land Area: 2,500 Sq Ft
Built Up Area: 5,200 Sq Ft
Architectural Design: Ansari Architects
Interior Design: Ansari Architects
This luxury home perfectly blends elegance functionality and outdoor living Premium pergolas enhance the exterior providing shaded areas that are both stylish and durable The fa ade features patterned metal screens warm wood accents glass railings and layered lighting complemented by a textured boundary wall and a sleek wooden entry gate The covered area includes smooth tiled flooring a wood-paneled ceiling with fans patterned staircase details and neatly arranged potted plants with elevated garden beds The entrance continues this refined aesthetic with wide tiled flooring patterned wooden doors soft wall lighting and thoughtfully placed planters A corridor with...
This luxury home perfectly blends elegance, functionality, and outdoor living. Premium pergolas enhance the exterior, providing shaded areas that are both stylish and durable. The façade features patterned metal screens, warm wood accents, glass railings, and layered lighting, complemented by a textured boundary wall and a sleek wooden entry gate. The covered area includes smooth tiled flooring, a wood-paneled ceiling with fans, patterned staircase details, and neatly arranged potted plants with elevated garden beds. The entrance continues this refined aesthetic with wide tiled flooring, patterned wooden doors, soft wall lighting, and thoughtfully placed planters. A corridor with polished marble wall cladding, smooth flooring, recessed lighting, and rich wooden door frames leads indoors. Dark stone stairs, glass railings, wooden soffits, and beige cladding complete a cohesive modern look.
The ground floor office room is designed for productivity, comfort, and modern elegance. This luxury home office features a polished wooden desk and ergonomic chairs, ensuring long hours of professional or creative work can be carried out comfortably. A textured 3D geometric wall in soft off-white adds visual interest while maintaining a neutral, calming palette. Wooden frames around the air-conditioning unit complement the warm, stylish interior. Recessed lighting provides even illumination, and light-toned flooring enhances the airy, open feel. Create a productive and stylish workspace with this luxury home office, where comfort, functionality, and contemporary elegance come together, making it the perfect space for focused work, study, or remote business tasks.
Luxury guest bedroom spaces combine contemporary style, comfort, and elegance. This bedroom features a plush upholstered headboard paired with soft beige walls and warm recessed lighting, creating a welcoming, cozy ambiance. Floating wooden side tables provide practical surfaces while maintaining a minimalist aesthetic. Dual wooden-framed windows with fabric blinds allow natural light to fill the space while preserving privacy. A ceiling fan and air-conditioning unit ensure year-round comfort, and light-toned flooring enhances the airy feel. A glossy mauve wardrobe, sleek entertainment unit, and rich wooden doors add sophistication and style. Recessed and cove lighting throughout the room creates a warm, modern atmosphere, making it ideal for guests seeking both comfort and refined design..
The first floor emphasizes modern sophistication and openness. The living room features a cream-toned L-shaped leather sofa paired with a sleek wooden coffee table, set against elegant recessed lighting. Blue accent chairs provide a vibrant contrast to the neutral palette, adding personality without overwhelming the space. Marble flooring and glass railings enhance the open-plan layout, creating a spacious and refined ambiance suitable for both relaxation and social gatherings. This floor demonstrates a careful balance of color, texture, and lighting, combining functionality with premium aesthetics.
The dining area exemplifies contemporary elegance and practicality. A black glass-top table with six cream leather chairs anchors the room, complemented by marble flooring and a wooden ceiling with recessed lighting. Large wooden-framed glass doors invite abundant natural light, while a frosted glass shelving unit adds both functionality and modern style. The design combines comfort, style, and openness, creating a bright, inviting space ideal for family meals or entertaining guests.
The outdoor corridor and courtyard reflect a harmonious blend of color, texture, and natural light. Mustard-yellow walls with black ledges, dark grey textured cladding, terracotta flooring, and a white pergola roof create an inviting and comfortable outdoor environment. The design ensures adequate shade and natural illumination, making it an ideal space for relaxation, casual gatherings, or enjoying the surrounding garden areas.
The pooja room elegantly combines tradition with modern design. A golden mandala backdrop featuring the sacred “Om” symbol provides a focal point, while polished wood, cream marble, and soft recessed lighting create a serene, warm ambiance. Floating shelves display idols and artwork, enhancing the room’s spiritual and aesthetic appeal. The design balances contemporary elegance with devotional functionality, offering a peaceful retreat within the home
The kitchen is a modern, functional, and stylish space. Glossy beige cabinets, light quartz countertops, and a sleek black refrigerator create a sophisticated yet practical layout. Textured grey walls, a black sink, and a copper faucet add character, while recessed lighting and wooden accents enhance warmth. Large windows allow natural light to flood the space, highlighting textures and finishes, making it a bright, inviting, and highly functional culinary area.
The parent’s bedroom combines elegance, comfort, and functionality. A tall upholstered headboard and high-gloss wooden panels create a strong focal point, complemented by crisp white bedding and brown accents. Minimalistic décor maintains a calm atmosphere, while functional elements such as cushioned window seating, a floating TV unit, and a geometric wardrobe enhance usability. The attached bathroom features marble-effect tiles, rich brown cladding, modern fixtures, a frosted glass ceiling, dark granite countertops, vessel sinks, and an LED mirror, maintaining a luxurious and cohesive design throughout.
The family area on the second floor emphasizes warmth, comfort, and style. Rust-orange velvet armchairs, a sleek black coffee table, and beige cabinetry create a welcoming space. Marble flooring and warm tones enhance the elegant ambiance, while a glass-paneled elevator adds convenience and modern sophistication. This area serves as a central hub for family interaction and relaxation, blending style and functionality seamlessly.
The kids’ bedroom combines comfort, functionality, and contemporary design. Warm neutral tones, a quilted bedspread, and a tall upholstered headboard create a cozy and stylish environment. Rich wooden accent walls and glossy white wardrobes with wooden inlays provide contrast and storage. Polished marble flooring, recessed ceiling lighting, a floating entertainment console, Roman-blind windows, cushioned seating nooks, overhead cabinets, and integrated air-conditioning ensure both comfort and practicality. The room offers a serene, cohesive space suitable for rest, study, and recreation.
The master bedroom blends muted greys, warm woods, and soft neutral tones to create a serene and elegant retreat. A walnut feature wall and upholstered grey headboard serve as focal points, while floating bedside tables, built-in window seating, polished marble floors, and ample natural light enhance comfort and functionality. Glossy wardrobes, a floating console, a study desk with a teal chair, and recessed cove lighting ensure modern sophistication. The vanity area features a walnut floating countertop, grey drawers, mirror, floating shelves, plush ottoman, and marble flooring. The bathroom maintains a minimalist elegance with beige matte tiles, dark granite accents, a glass shower partition, sleek fittings, a frosted window, and recessed lighting
The balcony combines contemporary style with practical design. Wood-look ceramic flooring, vertical wooden cladding, and a rich wooden door with geometric gold-accented glass create a sophisticated aesthetic. Clear glass railings, stainless-steel fittings, laser-cut metal screens, horizontal wooden ceiling panels, and recessed lighting enhance openness, natural light, texture, and modern timelessness.
The third-floor lobby is a sophisticated transition space featuring a staircase, elevator, and corridor with polished marble, granite steps, glass railings, stainless-steel accents, recessed lighting, and natural elements. This area combines functionality, elegance, and premium
design to guide residents toward other luxurious spaces.
The SPA area provides a luxurious retreat within the home. A corner jacuzzi, deep grey textured tiles, black granite countertop, recessed and cove lighting, and minimalist design create a relaxing, spa-like ambiance, perfect for unwinding and rejuvenating.
The home theatre offers an immersive entertainment experience. Dark hardwood flooring, textured acoustic walls, a starry-sky ceiling, recessed and cove lighting, and a high-definition projector provide cinematic quality. Plush olive-green velvet seating, tiered platforms, wall-mounted screens, floor-standing speakers, and concealed air-conditioning ensure comfort, style, and advanced technology for a visually and acoustically optimized environment.
The terrace combines elegance, relaxation, and practicality. Beige ceramic flooring, a wooden pergola with a laser-cut metal roof, a wooden deck, lounge chairs, and a coffee table create a cozy outdoor space. Glass railings, stainless-steel supports, stone columns, recessed lighting, and neutral materials enhance safety, openness, and timeless modern style, making it ideal for leisure and entertainment.
Ground Floor - Explore premium luxury pergola house designs and custom outdoor pergolas that elevate your living space with durable, stylish, modern solutions.
Distinct façade features patterned metal screens, wood accents, glass railings, and layered lighting, complemented by a textured boundary wall and a sleek wooden entry gate.
Expansive covered space features smooth tiled flooring, a wood-paneled ceiling with fans, patterned staircase elements, neatly arranged potted plants, and elevated garden beds along the perimeter.
The entrance area presents wide tiled flooring, a wood-paneled ceiling with fans, patterned wooden doors, soft wall lighting, and neatly arranged garden planters along the side.
Sleek corridor showcases polished marble wall cladding, smooth flooring, recessed lighting, rich wooden door frames, and a stylish planter guiding the view toward an inviting interior space.
Stylish workspace showcasing a polished wooden desk, ergonomic chairs, warm neutral palette, and soft ambient lighting, fostering a comfortable, functional, and aesthetically balanced environment.
Textured 3D geometric wall in off-white tones, wooden-framed air-conditioning unit, recessed lighting, and light flooring create a balanced, functional, and visually appealing interior.
The bedroom features a plush upholstered headboard, soft beige walls, and warm recessed lighting, complemented by floating wooden side tables and potted plants.
Dual wooden-framed windows with fabric blinds enhance the minimalist aesthetic, while a ceiling fan, air-conditioning unit, and light-toned flooring ensure comfort and balance.
A glossy mauve wardrobe, sleek entertainment unit, and rich wooden doors add sophistication, while recessed and cove lighting create a warm, contemporary ambiance.
This exterior showcases a modern design with dark stone stairs, glass railings, wooden soffits, and beige cladding, creating a sleek, elegant architectural appeal.
First Floor - This living room highlights a refined modern design with a cream-toned L-shaped leather sofa, a sleek wooden coffee table, and elegant recessed lighting.
Blue accent chairs add a vibrant contrast to the neutral palette, while marble flooring and glass railings create an open, sophisticated ambiance.
This dining area highlights modern sophistication with a black glass-top table, six cream leather chairs, marble flooring, and a wooden ceiling with recessed lighting.
A frosted glass shelving unit enhances functionality, while large wooden-framed glass doors invite natural light, creating a bright, elegant, and inviting atmosphere.
This outdoor corridor features a mustard-yellow wall with black ledges, dark grey textured cladding, terracotta flooring, and a white pergola roof for natural light.
This pooja room showcases a golden mandala backdrop with the sacred “Om” symbol, blending traditional spirituality with modern elegance and warmth.
Polished wood, cream marble, and soft recessed lighting enhance the serene ambiance, while floating shelves display idols and artwork beautifully.
This modern kitchen features glossy beige cabinets, light quartz countertops, and a sleek black refrigerator, creating a refined and functional layout.
Natural light enhances the textured grey walls, black sink, and copper faucet, while recessed lighting and wooden accents add warmth and elegance.
The tall upholstered headboard and high-gloss wooden panel create a striking focal point, complemented by crisp white bedding, brown accents, and minimal, stylish décor.
This bedroom features a refined modern design with a warm neutral palette, combining beige tones, wooden accents, and luxurious textures for a calm, elegant atmosphere.
Functional elements like the cushioned window seating, sleek floating TV unit, and geometric wardrobe design add practicality while enhancing the room’s contemporary sophistication.
The bathroom continues the luxurious aesthetic with marble-effect tiles, rich brown cladding, modern fixtures, and a frosted glass ceiling that filters soft natural light beautifully.
This bathroom showcases a modern, elegant design with marble-effect walls, a dark brown countertop, a vessel sink, and an illuminated LED mirror.
Second Floor -this modern living space features rust-orange velvet armchairs, a sleek black coffee table, beige cabinetry, and marble flooring, creating a warm, elegant ambiance.
The elegantly designed interior highlights a harmonious blend of warm tones and premium finishes, featuring marble flooring, rust-orange seating, and a glass-paneled elevator.
This bedroom features a refined contemporary design with warm neutral tones, a quilted bedspread, a tall upholstered headboard, and a rich wooden accent wall for elegant contrast.
Glossy white wardrobes with wooden inlays, polished marble flooring, recessed ceiling lighting, and a floating entertainment console enhance the room’s modern sophistication and functional appeal.
A window with Roman blinds, a cushioned seating nook, overhead cabinets, and integrated air-conditioning complete the serene, cohesive space with comfort, storage, and visual balance.
This bedroom showcases a modern design with beige, cream, and terracotta tones. The upholstered headboard with terracotta inlays and black bedding creates striking visual contrast.
Floating terracotta nightstands, a built-in study with matching drawers, and a glossy beige wardrobe offer functional storage while maintaining a cohesive, contemporary aesthetic throughout the room.
Polished cream marble flooring, recessed and cove lighting, Roman blinds, and a sleek ceiling fan enhance comfort, brightness, and the bedroom’s sophisticated, serene ambiance.
This balcony features a sleek, contemporary design with wood-look ceramic flooring, vertical wooden cladding, and a rich wooden door with geometric gold-accented glass, creating a refined, cohesive space.
Clear glass railings, stainless steel fittings, laser-cut metal screens, horizontal wooden ceiling panels, and recessed lighting enhance openness, natural light, texture, and modern timeless sophistication.
This bedroom features a refined modern design with muted greys, warm woods, and soft neutrals. The walnut feature wall and upholstered grey headboard create elegance.
Floating bedside tables, a polished marble floor, built-in window seating, and ample natural light enhance functionality, comfort, and a serene, spacious atmosphere.
Glossy wardrobes, a floating console, study desk with teal chair, and recessed, cove-lit ceiling lighting ensure modern sophistication, balanced style, and cohesive aesthetic throughout the space.
This modern, minimalistic vanity features a walnut floating countertop, grey drawers, mirror, floating shelves, plush ottoman, and marble flooring, blending functionality with contemporary elegance.
The bathroom features beige matte tiles, dark granite accents, a glass shower partition, sleek fittings, a frosted window, and recessed lighting for a minimalist, elegant look.
This space features a staircase, elevator, and corridor with polished marble, granite steps, glass railings, stainless-steel accents, recessed lighting, and natural elements for refined elegance.
A corner jacuzzi, deep grey textured tiles, black granite countertop, recessed and cove lighting, and minimalist design create a luxurious, relaxing, spa-like bathroom ambiance.
A luxurious home theatre features dark hardwood flooring, textured acoustic walls, starry-sky ceiling, recessed and cove lighting, and a high-definition projector for immersive cinematic experience.
Plush olive-green velvet seating, tiered platforms, wall-mounted screen, floor-standing speakers, and concealed air-conditioning combine comfort, style, and advanced technology in a visually sophisticated, acoustically optimized space.
The terrace features beige ceramic flooring, a wooden pergola with laser-cut metal roof, wooden deck, lounge chairs, and coffee table, creating a cozy, stylish, relaxing space.
Glass railings, stainless-steel supports, stone columns, recessed lighting, and neutral materials enhance safety, openness, elegance, and functionality outdoors.
You need to have at-least 2400sq ft of land. Minimum proposed construction area of about 4,500 sq ft is required for us to take it as a project. Less than that will not be a viable project for us.
We need to be paid an advance 'Retainer' Payment before we start working on a project.
Please make sure that you come with a mindset to give us maximum freedom for designing, so that we can deliver the best result to you.
You have to trust us totally, only then we can perform to our best capacity. To get this trust, please go through in detail, all the completed project photographs we have displayed in our website.
Our Experience in High-end, Luxury homes and our design sense are unmatchable in the field, whether among established or among the start-up firms.
We don’t just show the computer generated 3D images as many new start-up firms do. You can see many such examples all over internet. They can only show you the computer generated imaginary views, and cannot show the completed real life photos as you see in our site.
It is very easy to show a computer generated image. But it takes years of experience to bring it to reality. We excel in bringing out the design in reality, so that The final result invariably looks much better than what we showed in 3-D views .
Our designs are not 'run of the mill'. Each and every house or interior is custom designed to need and the requirement of the people who will use it. We impart so much thought process, hours of brain storming sessions, deep research work in to each and everyone of them. And it takes typically about 1.5 to 2 years to complete the results that you see in our website. This kind of result requires everyday involvement from us during the entire period of construction.
We charge on square foot basis. Hence, whether you use Vitrified tiles or Italian marble for flooring, our fee will be the same. So, when we suggest a costly finish, you will not get the feeling that we are doing it to hike our fee. At the same time we charge as per the Council of Architecture norms.
We also provide complete turnkey solutions, whether in construction or in interiors. So your involvement in the process of construction will be almost nil. But if you prefer to involve more in the process, you are always welcome.
We have a dedicated and experienced team of staff members who work tirelessly to bring our imagination to reality. They will support your building construction team by Involving in endless meetings and discussions with the contractors, and their site supervisors. Also they take special care in clearing all their doubts and questions.
Once a project design is finalised, we will allot a working team to your project. The head of the team will coordinate with the daytoday requirements of the contractor and their construction team. You can always call or meet the head of our team and get your doubts and questions clarified. If you are not satisfied with his/her answer, you are welcome to escalate the issue to the chief architect who will be glad to solve the issue.
If a certain staff is not available for taking care of your need, we always have a substitute who will be knowledgeable in your project and fill the absence of the previous one instantly. So that when you make a crucial call with an important doubt, you will never get a reply that the concerned person is not available.
We coordinate completely for getting approvals from Corporation / CMDA / DTCP for your project.
We have complete knowledge of all available latest technology and finishes like tiles, veneers, paints etc. We always pass on the architects discount to our clients. Besides, all the vendors will give you special rates as have long term relationship with them. Most importantly once they go through us, they will never think about compromising the quality of work. They know that the moment they do it they are out of good books.
Our engineers will periodically check the quality of construction as per the strict norms we have. During important stages of concreting our engineers will visit the site and they will sign and certify that the implementation is as per our drawing. The concreting can proceed only after this. If you prefer, we arrange for the site visits by our team more frequently at minimum extra fee.
We just don’t provide the drawings and wash our hands out. We will be with you safe guarding your interest until the complete hand over of the project. So we coordinating each and every stage of the construction. Because of this aspect, you might find our fee to be little more than our competitors. But the enormous value addition you get compensates much more than the little extra that you pay to us.
People spend enormous amounts for constructing their homes. But if the design is given to improper people who might make blunders in the design. For example, if they place one column in a wrong location, you are stuck with that column forever in your life. This negates the small saving you had in choosing a firm offering lesser fee than us. Please think about this before you finalise your architect.