Location: Thirunindravur Chennai
Land Area: 5,000 Sq Ft
Built Up Area: 8,000 Sq Ft
Client Name: Dr. Prem Kumar
Architectural Design: Ansari Architects
This Exposed Concrete Home showcases bold geometry, layered volumes, and seamless integration of design elements, creating a striking and inviting entry experience. The architecture balances modern aesthetics with functional living, delivering both style and comfort.
The residence presents a visually dynamic exterior with strong lines, volumetric layering, and exposed concrete finishes. The entry sequence is thoughtfully designed to create a welcoming yet dramatic arrival, emphasizing the home’s architectural character.
Inside soaring double-height ceilings and sculptural staircases enhance spatial flow and visual interest Carefully curated...
This Exposed Concrete Home showcases bold geometry, layered volumes, and seamless integration of design elements, creating a striking and inviting entry experience. The architecture balances modern aesthetics with functional living, delivering both style and comfort.
The residence presents a visually dynamic exterior with strong lines, volumetric layering, and exposed concrete finishes. The entry sequence is thoughtfully designed to create a welcoming yet dramatic arrival, emphasizing the home’s architectural character.
Inside, soaring double-height ceilings and sculptural staircases enhance spatial flow and visual interest. Carefully curated textures and materials create a harmonious blend of comfort, sophistication, and modern elegance.
The open-plan living areas feature expansive glass elements that encourage indoor-outdoor connectivity, filling the home with natural light and promoting an airy, light-filled ambiance. These spaces are designed for both everyday living and entertaining guests.
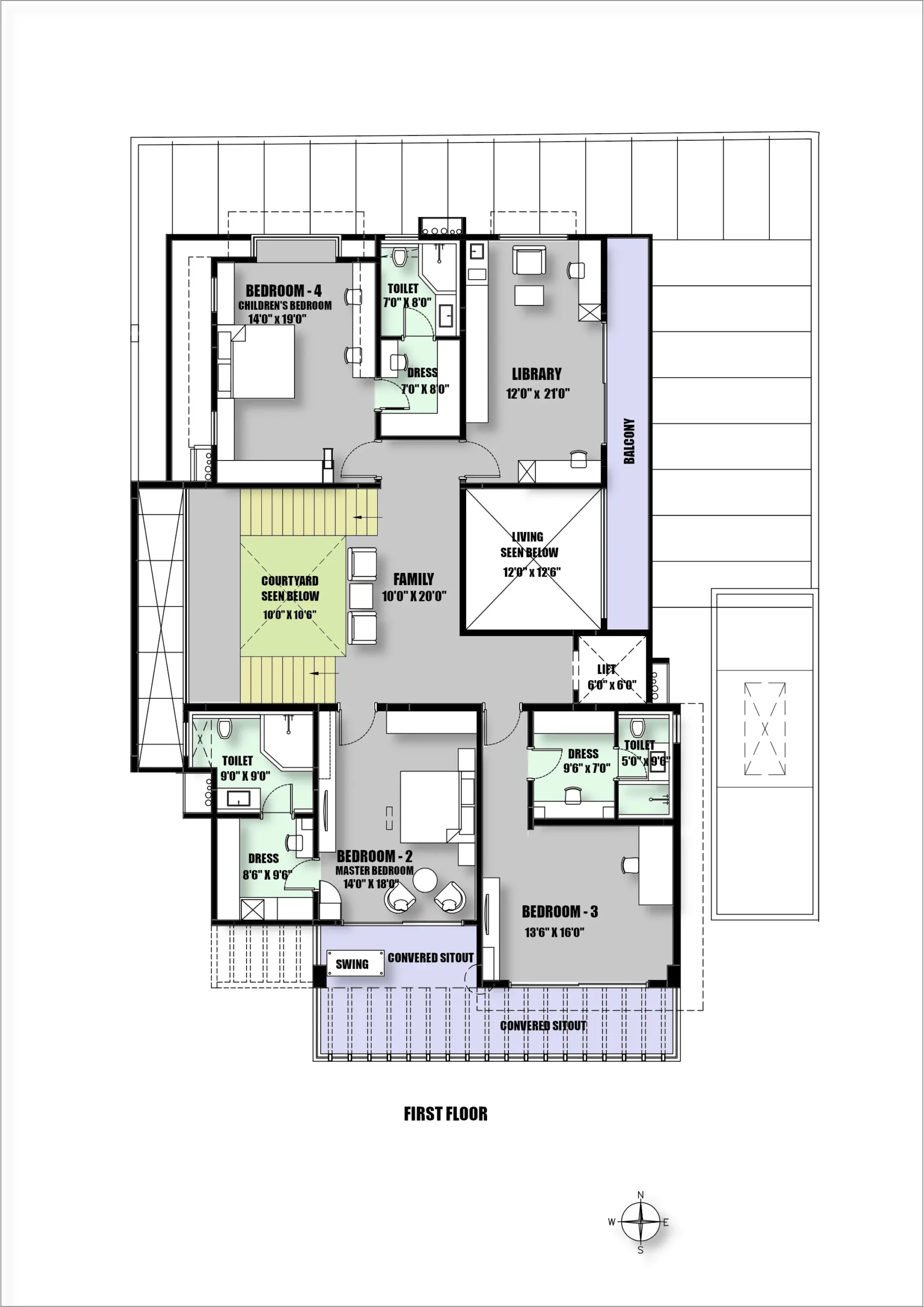
A serene double-height courtyard serves as a central feature, while a spacious family lounge overlooks the dramatic void. These areas are thoughtfully positioned to foster interaction, relaxation, and visual connectivity across levels.
The sleek kitchen combines functionality with refined design. Layered lighting, warm accent materials, and carefully planned storage make it both practical and visually appealing.
Private spaces, including bedrooms and custom libraries, feature minimalist cabinetry, textured walls, and subtle finishes. These areas are designed to promote tranquility, privacy, and comfort.
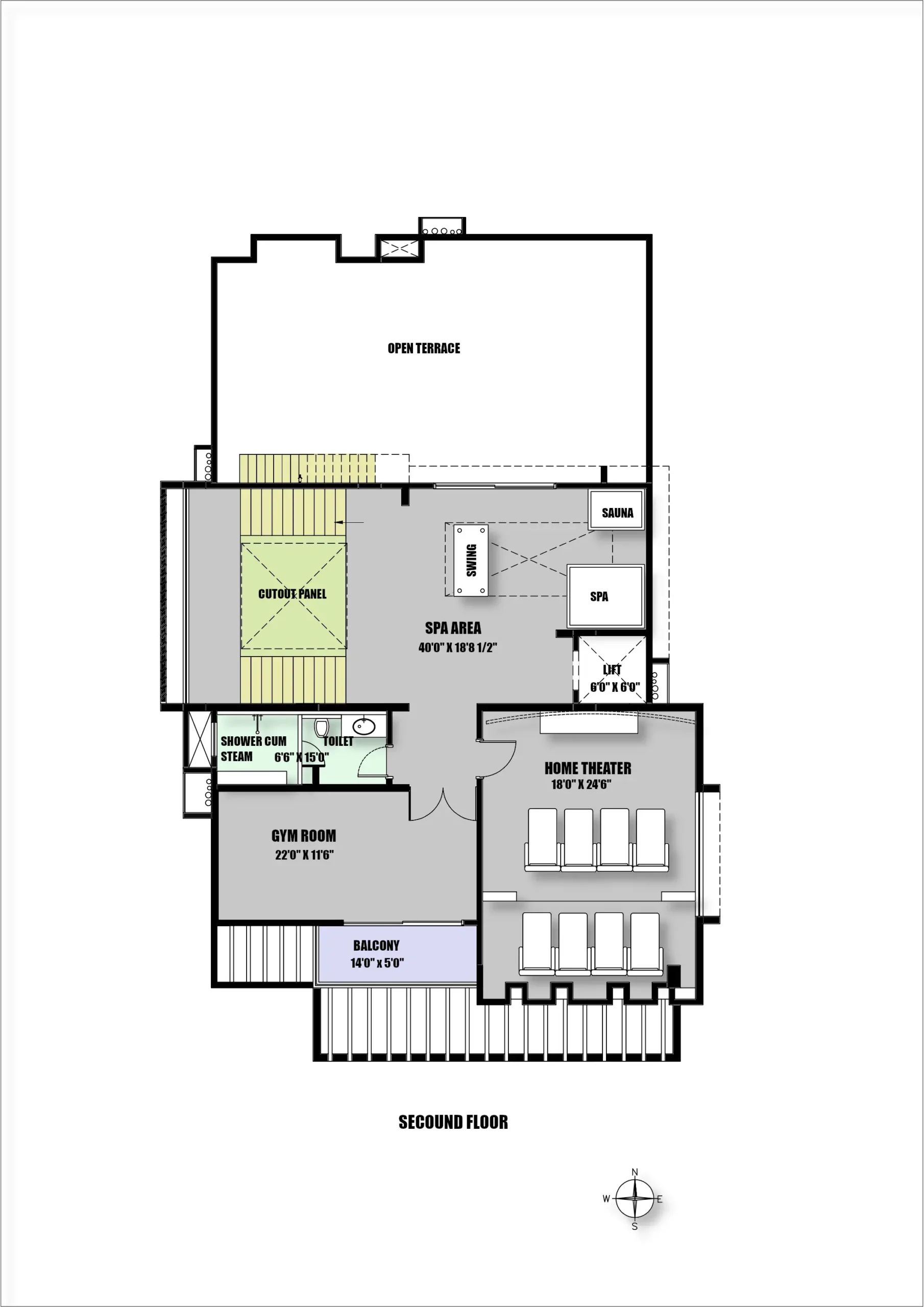
Additional highlights include a luxurious indoor spa, a dedicated home theater with acoustically engineered surfaces, and a versatile multipurpose room suitable for yoga, dance, or fitness. Each space is tailored for wellness, recreation, and lifestyle enhancement.
Watch Full video and share your thoughts in the comments : EXPOSED CONCRETE HOME you have never seen BEFORE!!
The facade showcases layered volumes, textured finishes, wood accents, vertical fins, and integrated lighting—creating a bold, balanced, and visually striking entry.
Designed with bold volumes and perforated screens, this residence balances light, privacy, and form through minimalist openings and layered textures for striking visual depth.
Minimalist entrance verandah with beige tiles, wooden door, and textured glass wall. Car parking enhances the functional layout.
Durable tiled parking and entry blend function with style, enhanced by integrated lighting for safety and aesthetics.
Swimming pool with tiled floor, illuminated side walls, large windows, and a curved canopy ceiling for a sleek, sheltered design.
The swimming pool enclosed design with solid walls offers privacy and a peaceful atmosphere, making it an ideal space for both relaxation and fitness within a stylish architectural setting.
In the lobby area, a full-height glass panel with LED-lit geometric patterns beside the main door creates a striking, modern entry feature.
Open living room with spacious flow, neutral tones, and glass staircase for a modern, comfortable feel.
Living room with beige walls, glossy floor, suspended wooden swing, and large glass doors, emphasizing spaciousness and natural light.
Soaring double-height ceilings with sculptural staircases enhance spatial flow. A textured feature wall contrasts with smooth surfaces, creating a modern look. The multi-level design blends function with striking architectural elements.
Central puja space with double-height glass, sculptural stairs, and warm textures creates a serene, light-filled courtyard.
Open kitchen and dining area with sleek cabinetry, layered lighting, and glass doors blending indoor-outdoor flow, enriched by warm wood accents and polished finishes.
Sleek white kitchen with central island, black accents, and integrated lighting for a refined, functional layout.
Large windows enhance natural light, connecting the space to the outdoors and emphasizing airy, modern kitchen.
Upper-level family area with glass railings and sculptural stairs overlooks a double-height courtyard, blending openness with refined, contemporary design.
Indoor staircase features sleek glass railings, metal handrails, and decorative screens that enhance privacy and light play, complemented by natural greenery.
Designed indoor staircase with clear glass railings, recessed lighting, and a decorative ceiling panel, combining transparency and intricate detailing for a striking modern look.
Large sliding glass doors in the bedroom connect seamlessly to the balcony, enhancing natural light and views while supporting an indoor-outdoor living experience. Drapes provide flexible control over light and privacy.
Polished wooden flooring adds warmth and continuity, while a seamlessly integrated door enhances the bedroom cohesive design.
Bedroom design combines comfort and style with a textured feature wall and streamlined built-ins. Neutral tones and polished wood flooring enhance its cozy, refined appeal.
Polished wooden flooring lends a refined, cohesive look to the workspace, combining visual warmth with lasting durability.
Interior space with large black-framed sliding glass doors opening to a balcony, light beige curtains tied back on either side, and wooden flooring.
Exposed concrete beams and columns create a rhythmic framework along the balcony, adding depth and a bold architectural statement.
Continuous concrete lines and aligned flooring define a rhythmic, cohesive pathway, enhancing connection to framed outdoor views and surroundings.
A custom-designed library along the far wall features a spacious surface and built-in shelving with accent lighting, creating a focused and inviting environment.
Library room with wooden flooring, glass-fronted cabinets, beige curtains, and a study area with desk and overhead storage.
Designed bedroom with polished wooden flooring, textured beige walls, sleek white cabinetry, and large windows with modern blinds, creating a warm, elegant, and functional space.
Textured concrete walls and warm wooden floors blend with built-in seating and workspace, enhanced by layered lighting and sleek windows.
Bedroom with wooden flooring, built-in white wardrobe with brown accent, and a compact work desk with shelves, creating a functional and cozy modern space.
Second-floor entrance with beige interiors, patterned tile flooring, large glass windows to the terrace, and sliding doors overlooking a double-height space with a chandelier.
Indoor spa room featuring patterned tile flooring, a wooden sauna, jacuzzi tub, large glass doors with cream curtains, beige walls, and a stainless steel double door.
Home theater with red acoustic panel walls and integrated speakers for optimal sound clarity. Projection-ready layout with concealed ceiling mounts ensures a seamless cinematic experience.
Dark-toned home theater with custom niches and red accents creates an immersive, light-controlled ambiance. Built-in shelving with accent lighting adds both function and visual depth.
Multipurpose room for dance, gym, and yoga featuring a mirrored wall, wooden flooring, textured finishes, and a frosted glass partition for privacy.
Spacious room with warm wooden floors, floor-to-ceiling mirrors, and large windows. Neutral tones and minimalist design create a calm, functional space ideal for fitness, dance, or relaxation.
You need to have at-least 2400sq ft of land. Minimum proposed construction area of about 4,500 sq ft is required for us to take it as a project. Less than that will not be a viable project for us.
We need to be paid an advance 'Retainer' Payment before we start working on a project.
Please make sure that you come with a mindset to give us maximum freedom for designing, so that we can deliver the best result to you.
You have to trust us totally, only then we can perform to our best capacity. To get this trust, please go through in detail, all the completed project photographs we have displayed in our website.
Our Experience in High-end, Luxury homes and our design sense are unmatchable in the field, whether among established or among the start-up firms.
We don’t just show the computer generated 3D images as many new start-up firms do. You can see many such examples all over internet. They can only show you the computer generated imaginary views, and cannot show the completed real life photos as you see in our site.
It is very easy to show a computer generated image. But it takes years of experience to bring it to reality. We excel in bringing out the design in reality, so that The final result invariably looks much better than what we showed in 3-D views .
Our designs are not 'run of the mill'. Each and every house or interior is custom designed to need and the requirement of the people who will use it. We impart so much thought process, hours of brain storming sessions, deep research work in to each and everyone of them. And it takes typically about 1.5 to 2 years to complete the results that you see in our website. This kind of result requires everyday involvement from us during the entire period of construction.
We charge on square foot basis. Hence, whether you use Vitrified tiles or Italian marble for flooring, our fee will be the same. So, when we suggest a costly finish, you will not get the feeling that we are doing it to hike our fee. At the same time we charge as per the Council of Architecture norms.
We also provide complete turnkey solutions, whether in construction or in interiors. So your involvement in the process of construction will be almost nil. But if you prefer to involve more in the process, you are always welcome.
We have a dedicated and experienced team of staff members who work tirelessly to bring our imagination to reality. They will support your building construction team by Involving in endless meetings and discussions with the contractors, and their site supervisors. Also they take special care in clearing all their doubts and questions.
Once a project design is finalised, we will allot a working team to your project. The head of the team will coordinate with the daytoday requirements of the contractor and their construction team. You can always call or meet the head of our team and get your doubts and questions clarified. If you are not satisfied with his/her answer, you are welcome to escalate the issue to the chief architect who will be glad to solve the issue.
If a certain staff is not available for taking care of your need, we always have a substitute who will be knowledgeable in your project and fill the absence of the previous one instantly. So that when you make a crucial call with an important doubt, you will never get a reply that the concerned person is not available.
We coordinate completely for getting approvals from Corporation / CMDA / DTCP for your project.
We have complete knowledge of all available latest technology and finishes like tiles, veneers, paints etc. We always pass on the architects discount to our clients. Besides, all the vendors will give you special rates as have long term relationship with them. Most importantly once they go through us, they will never think about compromising the quality of work. They know that the moment they do it they are out of good books.
Our engineers will periodically check the quality of construction as per the strict norms we have. During important stages of concreting our engineers will visit the site and they will sign and certify that the implementation is as per our drawing. The concreting can proceed only after this. If you prefer, we arrange for the site visits by our team more frequently at minimum extra fee.
We just don’t provide the drawings and wash our hands out. We will be with you safe guarding your interest until the complete hand over of the project. So we coordinating each and every stage of the construction. Because of this aspect, you might find our fee to be little more than our competitors. But the enormous value addition you get compensates much more than the little extra that you pay to us.
People spend enormous amounts for constructing their homes. But if the design is given to improper people who might make blunders in the design. For example, if they place one column in a wrong location, you are stuck with that column forever in your life. This negates the small saving you had in choosing a firm offering lesser fee than us. Please think about this before you finalise your architect.