Lake View Houses

Location: Kolathur Chennai

Land Area: 2,400 sq. ft

Built Up Area: 5,000 sq. ft

Client Name: Augustine

Architectural Design: Ansari Architects

Interior Design: Ansari Architects

Structural Consultant: Structures India, Chennai

Design Team: Mohan, Manimegalai

Project Details

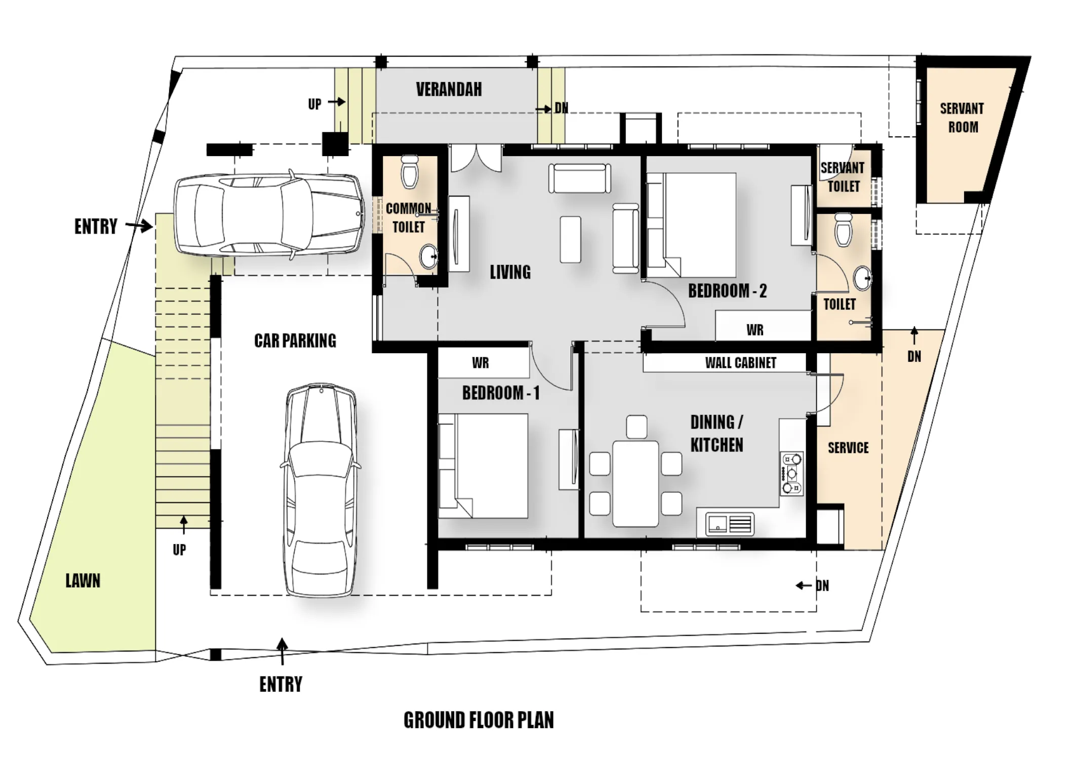
Lake View Houses The house is oriented toward a serene and expansive lake located on its western side This natural feature becomes a major visual asset for the project offering uninterrupted views and a strong connection to the surrounding landscape From the very beginning the design intent was to maximize this scenic advantage and ensure that the primary living spaces benefit from the lake-facing orientation Climate Challenge West-Facing Exposure While the west-facing orientation provides the best views it also presents a significant climatic challenge especially in Chennai s hot and humid conditions The western sun is particularly harsh during the...

Read more
  • Ground Floor
  • First Floor
  • Second Floor
Floor Image
Floor Image
Floor Image

Terms of Engagement

You need to have at-least 2400sq ft of land. Minimum proposed construction area of about 4,500 sq ft is required for us to take it as a project. Less than that will not be a viable project for us.

We need to be paid an advance 'Retainer' Payment before we start working on a project.

Please make sure that you come with a mindset to give us maximum freedom for designing, so that we can deliver the best result to you.

You have to trust us totally, only then we can perform to our best capacity. To get this trust, please go through in detail, all the completed project photographs we have displayed in our website.

Why Choose Us

Our Experience in High-end, Luxury homes and our design sense are unmatchable in the field, whether among established or among the start-up firms.

We show actual photos taken at site

We don’t just show the computer generated 3D images as many new start-up firms do. You can see many such examples all over internet. They can only show you the computer generated imaginary views, and cannot show the completed real life photos as you see in our site.

It is very easy to show a computer generated image. But it takes years of experience to bring it to reality. We excel in bringing out the design in reality, so that The final result invariably looks much better than what we showed in 3-D views .

Our Design Quality

Our designs are not 'run of the mill'. Each and every house or interior is custom designed to need and the requirement of the people who will use it. We impart so much thought process, hours of brain storming sessions, deep research work in to each and everyone of them. And it takes typically about 1.5 to 2 years to complete the results that you see in our website. This kind of result requires everyday involvement from us during the entire period of construction.

How We Charge

We charge on square foot basis. Hence, whether you use Vitrified tiles or Italian marble for flooring, our fee will be the same. So, when we suggest a costly finish, you will not get the feeling that we are doing it to hike our fee. At the same time we charge as per the Council of Architecture norms.

Turnkey solutions

We also provide complete turnkey solutions, whether in construction or in interiors. So your involvement in the process of construction will be almost nil. But if you prefer to involve more in the process, you are always welcome.

Dedicated Team members

We have a dedicated and experienced team of staff members who work tirelessly to bring our imagination to reality. They will support your building construction team by Involving in endless meetings and discussions with the contractors, and their site supervisors. Also they take special care in clearing all their doubts and questions.

Our working methodology

Once a project design is finalised, we will allot a working team to your project. The head of the team will coordinate with the daytoday requirements of the contractor and their construction team. You can always call or meet the head of our team and get your doubts and questions clarified. If you are not satisfied with his/her answer, you are welcome to escalate the issue to the chief architect who will be glad to solve the issue.

Replacement Staff

If a certain staff is not available for taking care of your need, we always have a substitute who will be knowledgeable in your project and fill the absence of the previous one instantly. So that when you make a crucial call with an important doubt, you will never get a reply that the concerned person is not available.

Coordination / Liasoning

We coordinate completely for getting approvals from Corporation / CMDA / DTCP for your project.

Contractors / Vendors Dealings

We have complete knowledge of all available latest technology and finishes like tiles, veneers, paints etc. We always pass on the architects discount to our clients. Besides, all the vendors will give you special rates as have long term relationship with them. Most importantly once they go through us, they will never think about compromising the quality of work. They know that the moment they do it they are out of good books.

Quality Checks

Our engineers will periodically check the quality of construction as per the strict norms we have. During important stages of concreting our engineers will visit the site and they will sign and certify that the implementation is as per our drawing. The concreting can proceed only after this. If you prefer, we arrange for the site visits by our team more frequently at minimum extra fee.

Always with you

We just don’t provide the drawings and wash our hands out. We will be with you safe guarding your interest until the complete hand over of the project. So we coordinating each and every stage of the construction. Because of this aspect, you might find our fee to be little more than our competitors. But the enormous value addition you get compensates much more than the little extra that you pay to us.

A Final word before you decide

People spend enormous amounts for constructing their homes. But if the design is given to improper people who might make blunders in the design. For example, if they place one column in a wrong location, you are stuck with that column forever in your life. This negates the small saving you had in choosing a firm offering lesser fee than us. Please think about this before you finalise your architect.

ansari architects logo
Privacy Overview

This website uses cookies so that we can provide you with the best user experience possible. Cookie information is stored in your browser and performs functions such as recognising you when you return to our website and helping our team to understand which sections of the website you find most interesting and useful.